





































| Kohdenumero | 11420 |
| Kohdetyyppi | Liiketila | Sijainti | Itäinen Pitkäkatu 42 c |
| Kaupunginosa | |
| Huoneluku | |
| Pinta-ala | 368,5 m² |
| Lämmitysjärjestelmä | Kaukolämpö |
| Ranta | Ei valittu |
| Rannan tyyppi | Meri |
| Vapautuminen | Sopimuksen mukaan |
| Neliöhinta | 1 343,28 € |
| Hoitovastike | 1 124,40 € |
| Myyntihinta | 474 953 € |
| Velkaosuus | 20 047 € |
| Velaton hinta | 495 000 € |
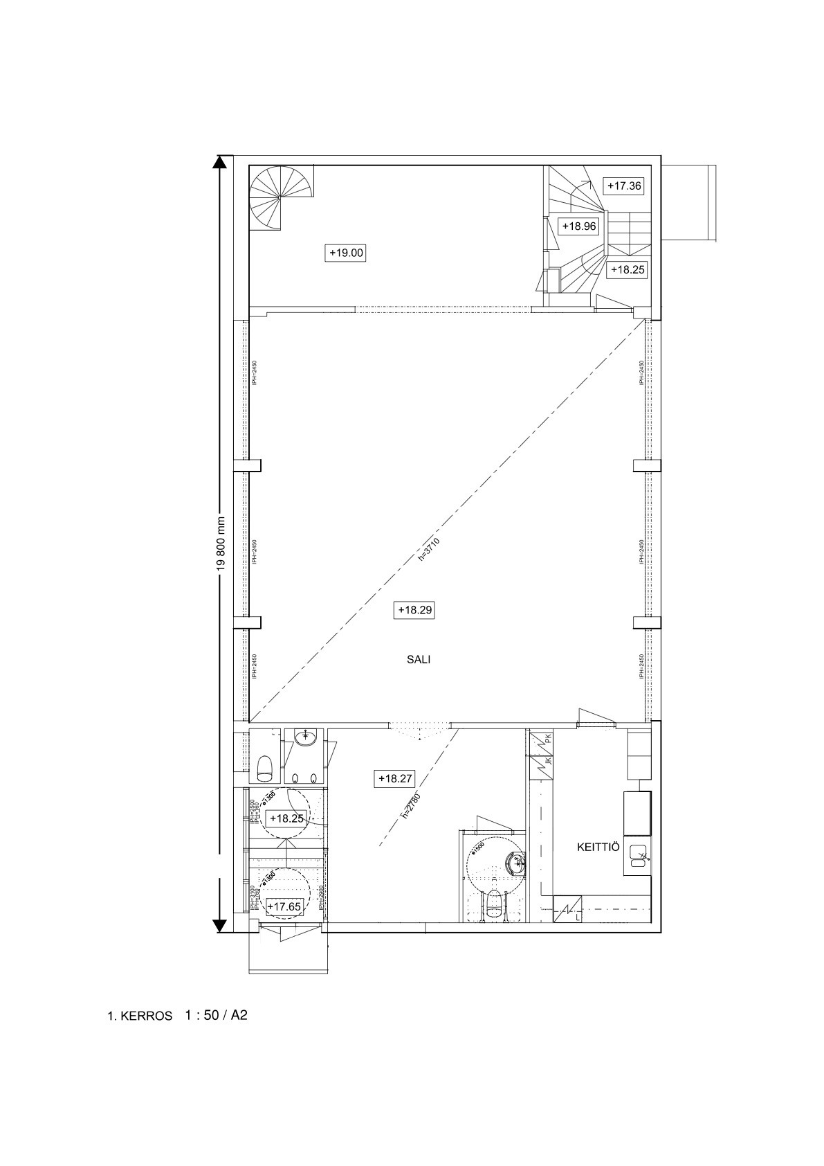
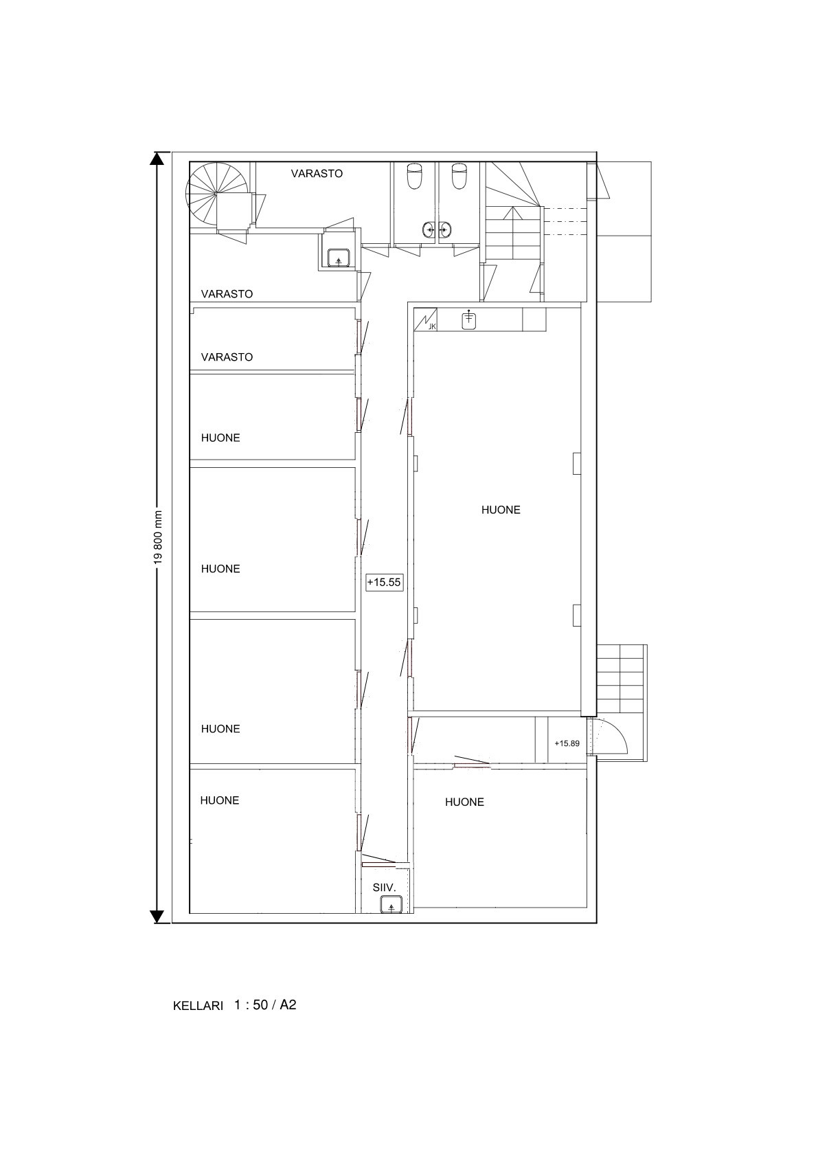
Myydään 368,5m2 toimitila osoitteessa Itäinen Pitkäkatu 42c, Turku. Toimitila soveltuu monenlaiseen käyttöön, yhtiöjärjestyksen mukaan katutason tila on juhlasali ja kellaritila kerhohuoneisto. Tilakokonaisuus, jossa katutason 200m2 salin lisäksi kellarikerroksessa n. 168,5 m2 toimisto-kokoustilat. Katutason salin yhteydessä esiintymislava, esteetön-wc sekä jakelukeittiöksi soveltuvat tilat. Sali on hyväksytty kokoushuoneistoksi, jonka suurin sallittu henkilömäärä yhdellä kerralla on 150–200 henkilöä. Tilat ovat kauttaaltaan siistissä kunnossa ja remontoitu viimeisten vuosien aikana laajasti. Edullinen hoitovastike. Velaton hintapyyntö 495 000 euroa Velkaosuus 20 047,41 (11.3.2025) Myyntihinta 474 953 euroa Heti vapaa Energiatehokkuusluokka E. Kysy lisätietoja
| Sauna | Ei saunaa |
| Nimi | Asunto-oy Kaskentoivo |
| Rakennusvuosi | 1962 |
| Lämmitysjärjestelmä | Kaukolämpö |
| Rakennusmateriaali | Betoni |
| Talossa hissi | Kyllä |
| Tontin koko | 1745 m² |
| Tontin omistus | Oma |
| Energialuokka | E |
| Asuinhuoneistojen määrä | 46 |
| Asuinhuoneistojen pinta-ala yhteensä | 2 218,0 m² |
| Liiketilojen määrä | 5 |
| Taloyhtiön hallinnassa olevat liiketilat | 129,5 m2 liiketila |
| Liiketilojen pinta-ala yhteensä | 256,5 m² |
| Velkaosuuden maksaminen | Velkaosuuden voi maksaa |
| Suoritetut remontit | 1988 Ikkunat uusittu 1992 Liikehuoneistojen ikkunat uusittu 1996 Autotallien ja parvekkeitten ovet uusittu 1996 Kellarin putkisto uusittu 1998 Toivo II:n putkistosaneeraus 2000 Parvekesaneeraus 2001 Toivo II:n ikkunat uusittu 2003 Porrashuoneiden ala-aulojen laatoitus 2005 Peltikatot uusittu 2005-2006 Ulkopuoliset viemärit uusittu 2007-2008 Putkistosaneeraus 2012 Kattojen maalaus 2012 Tuuletusparvekkeiden ovet ja ikkunat uusittu 2014 Tuuletusparvekkeet korjattu 2015 Huoneistojen ikkunoiden ja parvekeovien uusiminen Perustukset seurannassa, seuranta aloitettu 2000-luvun alussa 2017 Lukitus uusittu, ulko-ovet uusittu 2019 LTO 2021 Porrashuoneiden korjaus 2021 St. Henrik-salin salaojien korjaukset 2023 Jätepisteen uudistaminen Molok-järjestelmällä 2024 Patteriverkoston perussäätö |
| Tulevat remontit | Hissit Sähkösaneerauksen suunnittelu |
| Hoitovastike | 1 124,40 € / kk |
| Rahoitusvastike | 595,32 € / kk |
| Yhtiövastike | 1 719,72 € / kk |
Tony Rosenblad
Hallituksen puheenjohtaja
+358 50 551 5375
Lähetä viesti