Keskusta




| Kohdenumero | 11404 |
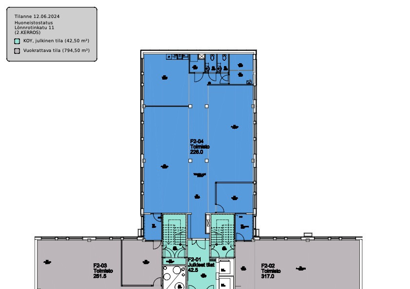
| Kohdetyyppi | Toimistotila | Sijainti | Lönnrotinkatu 11 |
| Kaupunginosa | Keskusta |
| Huoneluku | |
| Pinta-ala | 216,0 m² |
| Huoneiston kerros | 2. |
| Vapautuminen | Heti vapaa |
| Vuokra / kk | 0 € |
| Sopimustyyppi | Toistaiseksi |
Laadukkaasti saneeratussa kiinteistössä 216 m2 toimisto toisessa kerroksessa Lounasravintola on ja autopaikkoja vuokrattavissa.
| Sauna | Ei saunaa |
Mika Tilli
Välittäjä, LKV
0407013005
Lähetä viesti