



| Kohdenumero | 11356 |
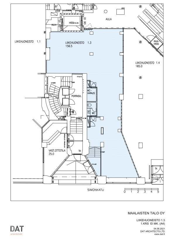
| Kohdetyyppi | Liiketila | Sijainti | Simonkatu 6 |
| Kaupunginosa | |
| Kiinteistötunnus | |
| Huoneluku | |
| Pinta-ala | 156,5 m² |
| Tontti | Oma tontti |
| Ranta | Ei valittu |
| Rannan tyyppi | Meri |
| Vapautuminen | Heti vapaa |
| Vuokra / kk | 0 € |
| Sopimustyyppi | Toistaiseksi |
Vapautumassa 1.1.2026! Helsingin kaupallisen keskustan ytimessä, Forumissa katutason liiketilaa, sisäänkäynti Simonkadulta ja Forumista. Tila on yhdistettävissä viereiseen 165 m2 liiketilaan jolloin koko pinta-ala on 321,5m2. Tila on vapaa. Kysy lisätietoja mika.tilli@rhg.fi
| Sauna | Ei saunaa |
| Energiatodistus | Ei lain edellyttämää energiatodistusta |
Mika Tilli
Välittäjä, LKV
0407013005
Lähetä viesti