

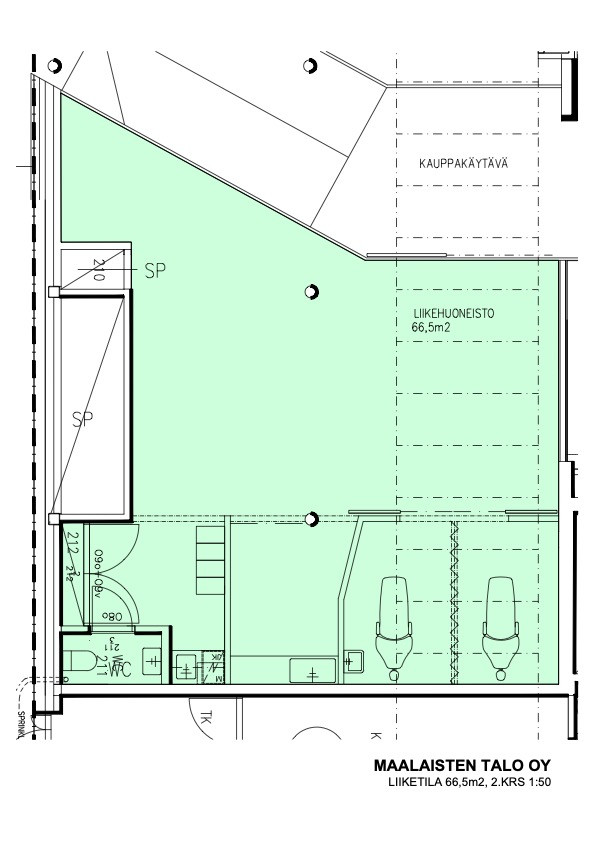
| Kohdenumero | 11353 |
| Kohdetyyppi | Liiketila | Sijainti | Simonkatu 6 |
| Kaupunginosa | |
| Kiinteistötunnus | |
| Huoneluku | |
| Pinta-ala | 66,5 m² |
| Tontti | Oma tontti |
| Ranta | Ei valittu |
| Rannan tyyppi | Meri |
| Vapautuminen | Heti vapaa |
| Vuokra / kk | 0 € |
| Sopimustyyppi | Toistaiseksi |
Vuokrattavana 1.1.2026 alkaen! Forumissa parturi-kampaajan tila. Sopii myös muuhun käyttöön. Kysy lisätietoja mika.tilli@rhg.fi
| Sauna | Ei saunaa |
| Energiatodistus | Ei lain edellyttämää energiatodistusta |
Mika Tilli
Välittäjä, LKV
0407013005
Lähetä viesti