Malminkatu 28, 00100 Helsinki

Toimistotila, 525 m²

0 € / kk

0 € / kk

Kamppi

Perustiedot

Kohdenumero 11307
Kohdetyyppi Toimistotila
Sijainti Malminkatu 28
Kaupunginosa Kamppi
Huoneluku
Pinta-ala 525,0 m²
Ranta Ei valittu
Rannan tyyppi Meri
Vapautuminen Heti vapaa
Vuokra / kk 0 €
SopimustyyppiToistaiseksi
Video

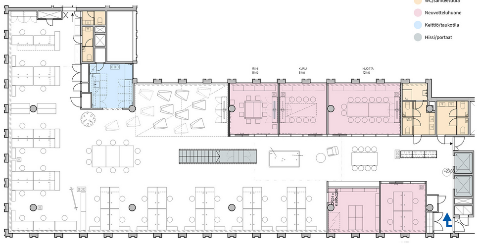
  Vuokrattavana 3. kerroksen toimisto ( 525 m2) erinomaiselta sijainnilta Kampin ydimestä. Erinomaiset julkiset liikkenneyhteydet ja monipuoliset palvelut kivenheiton päässä. Lyhyet etäisyydet metroasemalle ja Kampin keskukseen.  

  Navigoi kohteeseen
Sauna Ei saunaa

Heli Reinberg

  040 647 4900
  Lähetä viesti

Haluatko lisätietoja juuri tästä kohteesta?

Syötä yhteystietosi niin lähetämme lisätietoja!

Kiitos, otamme sinuun pian yhteyttä!