Iso-Paavolankatu 2, 15100 Lahti

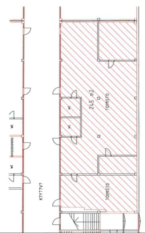
Toimistotila, 245 m², Avotoimisto, 2 huonetta

0 € / kk

0 € / kk

Perustiedot

Kohdenumero 11239
Kohdetyyppi Toimistotila
Sijainti Iso-Paavolankatu 2
Kaupunginosa
Huoneluku Avotoimisto, 2 huonetta
Pinta-ala 245,0 m²
Ranta Ei valittu
Rannan tyyppi Meri
Vapautuminen Heti vapaa
Vuokra / kk 0 €
SopimustyyppiToistaiseksi
Video

  Vuokrattavana katutason toimisto ( 245 m2). Esimmäksen avotilaa + 2 huonetta. Kiinteistöltä löytyy runsaasti parkkipaikkoja.   

  Navigoi kohteeseen
Sauna Ei saunaa

Heli Reinberg

  040 647 4900
  Lähetä viesti

Haluatko lisätietoja juuri tästä kohteesta?

Syötä yhteystietosi niin lähetämme lisätietoja!

Kiitos, otamme sinuun pian yhteyttä!