









| Kohdenumero | 11200 |
| Kohdetyyppi | Toimistotila | Sijainti | Yliopistonkatu 16 |
| Kaupunginosa | |
| Huoneluku | |
| Pinta-ala | 109,0 m² |
| Vapautuminen | Heti vapaa |
| Vuokra / kk | 1 962 € |
| Vuokravakuus | Sopimuksen mukaan |
| Sopimustyyppi | Toistaiseksi |
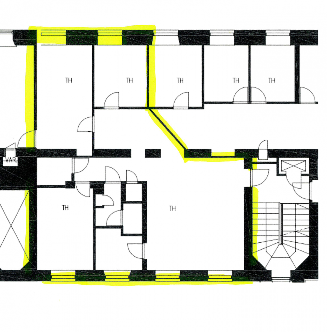
Siistikuntoinen toimistotila Turun ydinkeskusta kauppatorin laidalla. Hissitalon B-portaan 5. kerroksen 109 m2 toimistotila. Käynti taloon sisäpihan kautta. Tila käsittää neljä erikokoista huonetta. Mahdollisuus vuokrata myös autopaikkoja. Vapautuu viimeistään kesäkuussa 2024 tai nopeammin sopimuksen mukaan. Vuokra 1962 €/ kk + alv, sähkö ja vesi.
| Sauna | Ei saunaa |
| Nimi | Yliopistonkatu 16 |
| Talossa hissi | Ei |
| Tontin omistus | Vuokra |
| Energialuokka | Ei lain edellyttämää energiatodistusta |
Juho Viljanen
LKV
040 741 7522
Lähetä viesti