



| Kohdenumero | 11193 |
| Kohdetyyppi | Toimistotila | Sijainti | Haarlankatu 4 F |
| Kaupunginosa | |
| Huoneluku | |
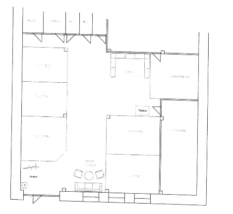
| Pinta-ala | 220,0 m² |
| Ranta | Ei valittu |
| Rannan tyyppi | Meri |
| Vapautuminen | Heti vapaa |
| Vuokra / kk | 0 € |
| Sopimustyyppi | Toistaiseksi |
Haarlankadulta historiallisesta tehdasmiljööstä modernia täysin remontoitua korkeaa toimistotilaa raitiovaunureitin varrelta. Kiinteistössä on vapaana erikokoisia tiloja. Kiinteistöllä on runsaasti parkkipaikkoja ja siellä toimii myös lounasravintola josta saa catering-palveluita. Lisätiedot: 045 610 2752 tai mikko.wallgren@rhg.fi Lisää toimitiloja: www.rhg.fi
| Sauna | Ei saunaa |
Mikko Wallgren
Työntekijä
045 6102 752
Lähetä viesti