Koivuhaka


| Kohdenumero | 10976 |
| Kohdetyyppi | Toimistotila | Sijainti | Piitie 3 |
| Kaupunginosa | Koivuhaka |
| Huoneluku | |
| Pinta-ala | 761,0 m² |
| Ranta | Ei valittu |
| Rannan tyyppi | Meri |
| Vapautuminen | Heti vapaa |
| Vuokra / kk | 0 € |
| Sopimustyyppi | Toistaiseksi |
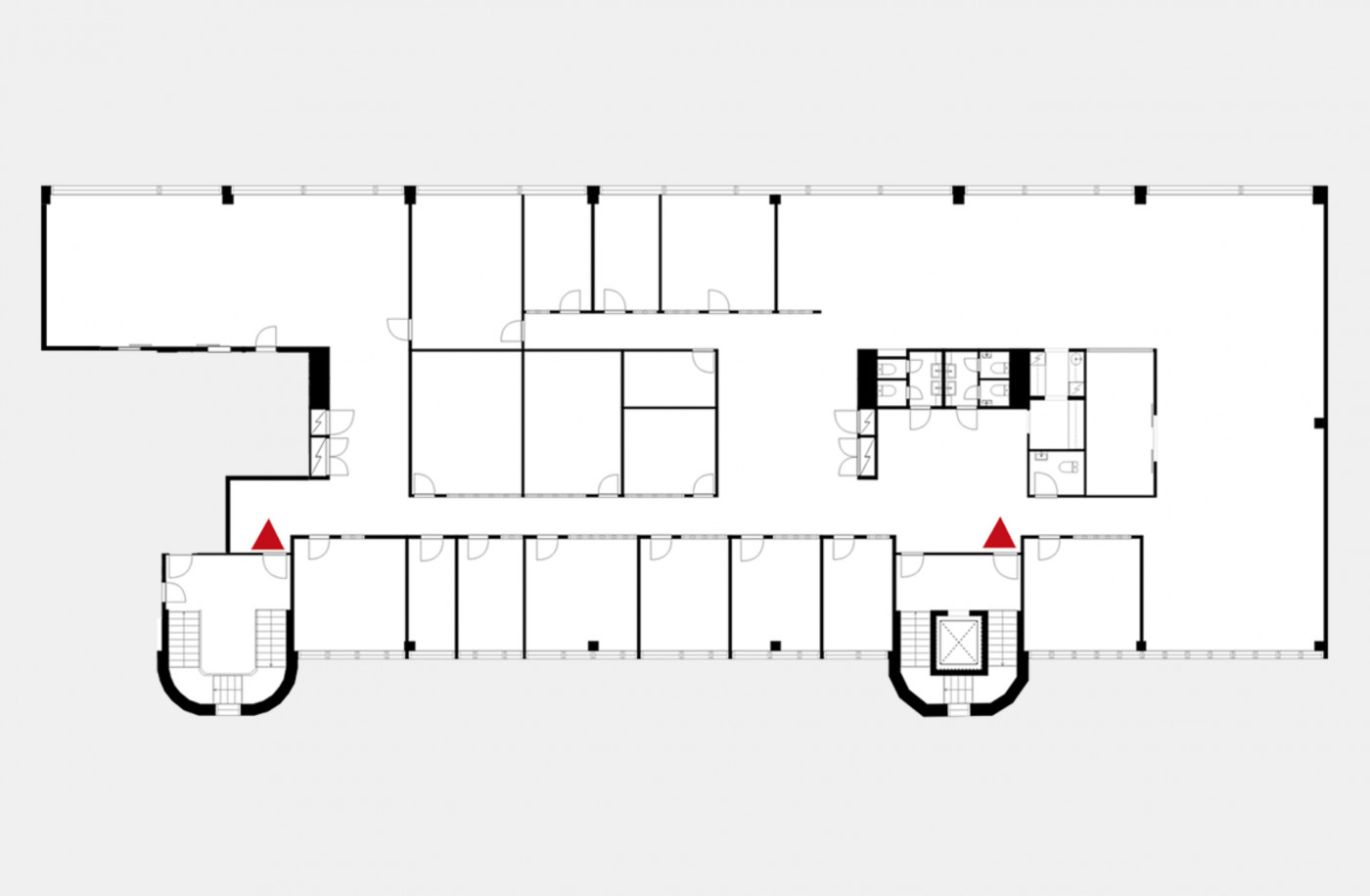
Vuokrataan kolmannen kerroksen 624m2 avara monitilatoimisto. Tilasta löytyy avotilaa, eri kokoisia työ- ja neuvotteluhuoneita sekä wc- ja keittiötilat. Toimiva sijainti Koivuhaassa Helsinki-Vantaan lentoaseman ja Tikkurilan matkakeskuksen läheisyydessä Kehä III:n ja Tuusulanväylän tuntumassa. Kiinteistössä lounasravintola sekä vuokrattavissa erillisiä neuvottelutiloja. Kysy lisää Jouko Raitanen Helsinki puh. 0504695444
| Sauna | Ei saunaa |
Jouko Raitanen
050 469 5444
Lähetä viesti