

| Kohdenumero | 10964 |
| Kohdetyyppi | Toimistotila | Sijainti | Bertel Jungin Aukio 1 (E-talo) |
| Kaupunginosa | |
| Kiinteistötunnus | |
| Huoneluku | |
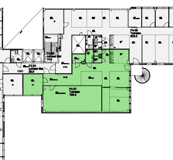
| Pinta-ala | 201,0 m² |
| Tontti | Oma tontti |
| Ranta | Ei valittu |
| Rannan tyyppi | Meri |
| Vapautuminen | Vapautuu: 01.03.2024 |
| Vuokra / kk | 0 € |
| Sopimustyyppi | Toistaiseksi |
Vapautumassa valoisaa 4. kerroksen toimistotilaa 201 m2. Kiinteistössä aulapalvelu ja vuokrattavissa pysäköintipaikkoja. Leppävaaran hyvät palvelut ja liikenneyhteydet hyvödynnettävissä. Kysy mika.tilli@rhg.fi, 0407013005
| Sauna | Ei saunaa |
| Energiatodistus | Ei lain edellyttämää energiatodistusta |
Mika Tilli
Välittäjä, LKV
0407013005
Lähetä viesti