Rydöntie 32, 20360 Turku

Tuotantotila, 4350 m²

26 000 € / kk

26 000 € / kk

Perustiedot

Kohdenumero 10963
Kohdetyyppi Tuotantotila
Sijainti Rydöntie 32
Kaupunginosa
Kiinteistötunnus
Huoneluku
Pinta-ala 4 350,0 m²
Tontti Vuokratontti
Tontin vuokranantaja
Ranta Ei valittu
Rannan tyyppi Meri
Vapautuminen Vapautuu: 01.02.2024
Vuokra / kk 26 000 €
SopimustyyppiToistaiseksi
Video

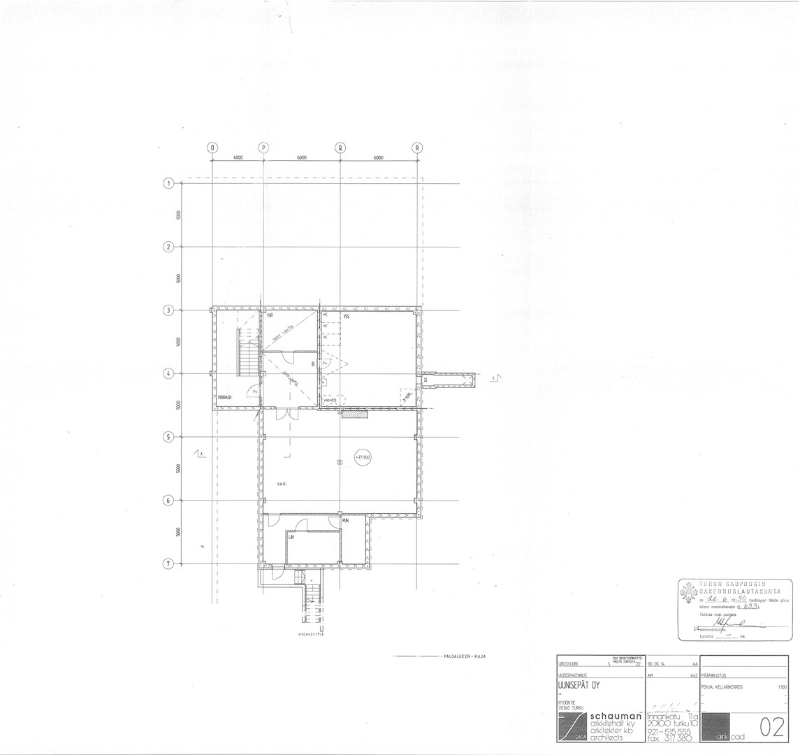
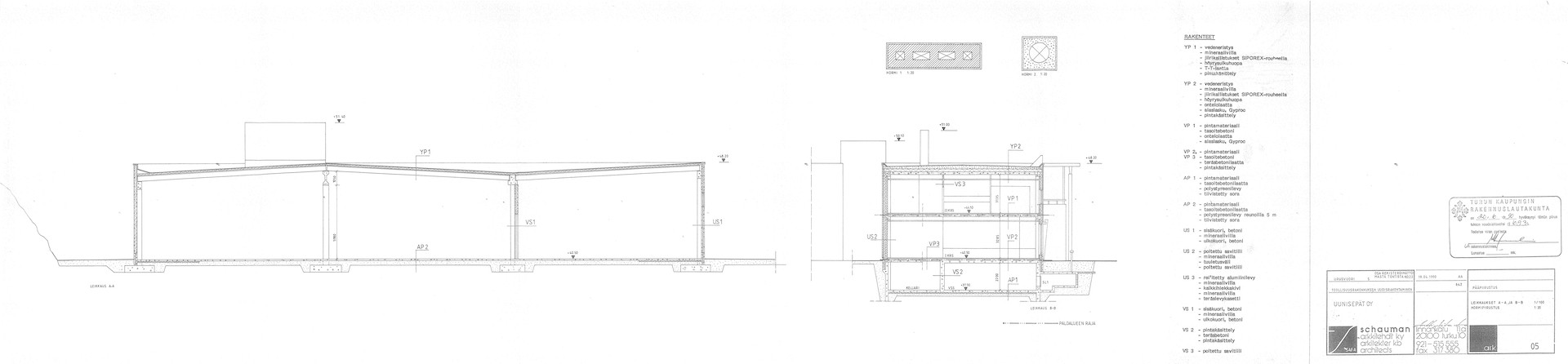
  Vuokrattavana 4 350m2 tuotantotilat Urusvuorella osoitteessa Rydöntie 32, Turku. Kiinteistö sijaitsee liikennellisesti loistavalla paikalla, Turun kehätien ja Tampereen valtatien välittömässä läheisyydessä. Tiloissa toiminut aikaisemmin Uunisepät niminen yritys. Tilakokonaisuus, jossa katutason näyttelytilan lisäksi jäähdytetty 2.krs toimistotila sekä kaksi erillistä tuotantohallia. Neliöt yhteensä n. 3 600m2. Hallit on yhdistetty toisiinsa. Hallien vapaa korkeus n. 5,8 metriä. Sähkönsyöttö on 3 x 3 x 250A. Lämmitysmuoto kaukolämpö. Tilat mahdollista muokata tulevan vuokralaisen tarpeiden mukaisiksi, jos esim. tarvitaan lisää nosto-ovia, katto-nostureita ym. Tontin kokonaispinta-ala 2,1 ha. Kokonaan aidattu piha. Kuvassa näkyvä Best halli ei sis. vuokrattaviin tiloihin. Vuokrapyyntö tilat nykykunnossa: pääomavuokra 26 000 euroa/kk + alv. Vapautuu 1.2.2024 Lisää tuotantotiloja www.rhg.fi  

  Navigoi kohteeseen
Sauna Oma sauna
Energiatodistus Ei lain edellyttämää energiatodistusta

Tony Rosenblad
Hallituksen puheenjohtaja
  +358 50 551 5375
  Lähetä viesti

Haluatko lisätietoja juuri tästä kohteesta?

Syötä yhteystietosi niin lähetämme lisätietoja!

Kiitos, otamme sinuun pian yhteyttä!