Länsikeskus










| Kohdenumero | 10953 |
| Kohdetyyppi | Liiketila | Sijainti | Asentajankatu 8 |
| Kaupunginosa | Länsikeskus |
| Huoneluku | Avoin liiketila |
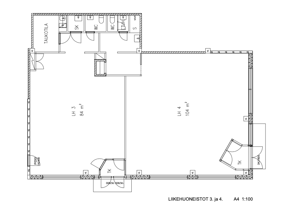
| Pinta-ala | 104,0 m² |
| Lämmitysjärjestelmä | Kaukolämpö |
| Vapautuminen | Vapautuu: 01.10.2025 |
| Vuokra / kk | 1 590 € |
| Vuokravakuus | 3 kk vuokraa vastaava summa |
| Sopimustyyppi | Toistaiseksi |
Kiinteistö sijaitsee kaupallisella paikalla Prisman ja Citymarketin välissä Länsikeskuksessa. Vuokrattava tila sijaitsee rakennuksen kulmassa ja näyteikkunat ovat Viilarinkadun suuntaan. Tilassa toiminut viimeksi keittiömyymälä ja kirpputori. Huoneistossa on myös suihku. Tämän tilan vuokrapyyntö on 1590 e/kk + alv + sähkö ja vesi. Pihalla runsaasti ilmaista pysäköintitilaa. Tila on pohjakuvassa LH4.
| Sauna | Ei saunaa |
| Nimi | Kiinteistö Oy Turun Länsiportti |
| Lämmitysjärjestelmä | Kaukolämpö |
| Talossa hissi | Ei |
| Tontin omistus | Oma |
| Energialuokka | Ei lain edellyttämää energiatodistusta |
| Muut maksut | Vesimaksu 30 € |
Juho Viljanen
LKV
040 741 7522
Lähetä viesti