Lemuntie 7, 00510 Helsinki

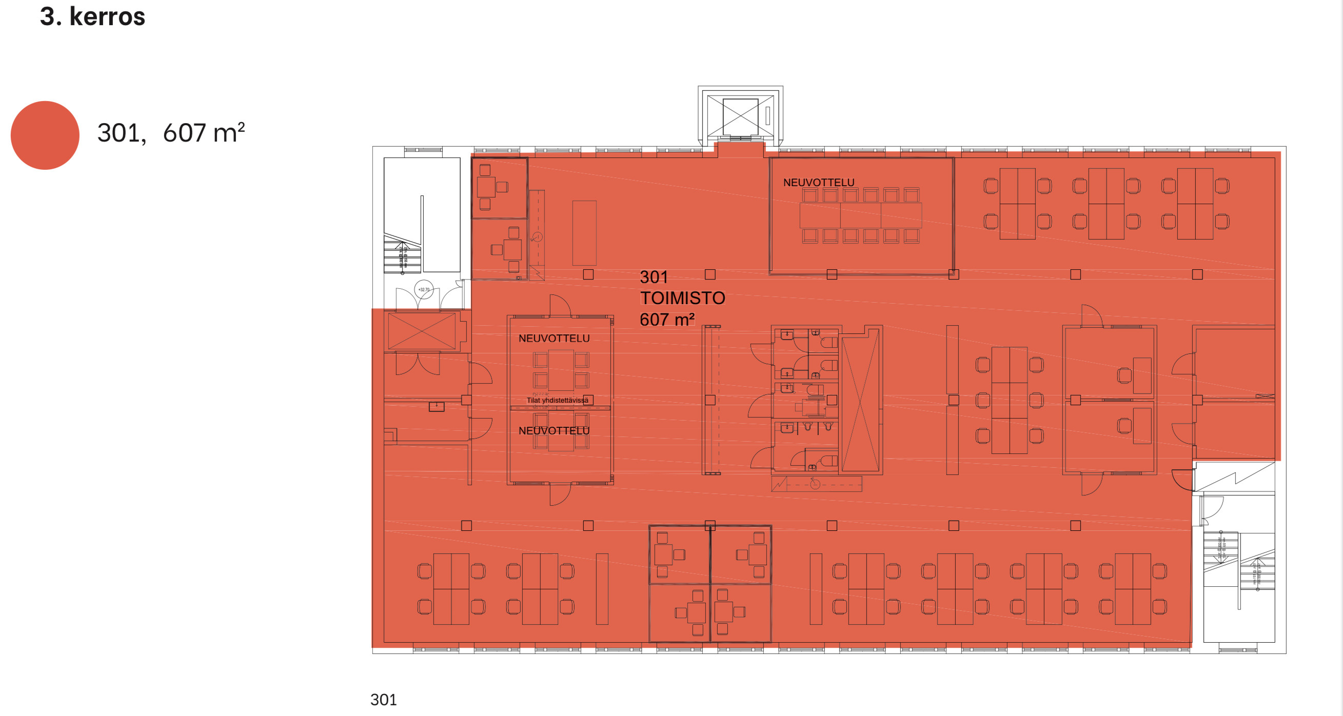
Toimistotila, 607 m²

0 € / kk

0 € / kk

Vallila

Perustiedot

Kohdenumero 10947
Kohdetyyppi Toimistotila
Sijainti Lemuntie 7
Kaupunginosa Vallila
Huoneluku
Pinta-ala 607,0 m²
Vapautuminen Heti vapaa
Vuokra / kk 0 €
SopimustyyppiToistaiseksi
Video

  Vuokrataan kolmannen kerroksen 607m2 avotoimistotila erinomaisella sijainnilla Vallilassa. Vallilan Akseli & ; Elina on tunnettu etenkin designin, teollisen muotoilun sekä muiden luovien alojen yrityksistä. Kiinteistön tiloissa yhdistyvät kiehtovalla tavalla mennyt, nykyisyys ja tuleva. Rakennukset ovat toimineet aiemmin radioverstaana sekä linja-autojen koritehtaana.Tilat ovat saneerattuja ja siistejä. Kiinteistössä on lisäksi suosittu Antell lounasravintola. Kiinteistöön on helppo tulla myös pyörällä tai omalla autolla. Lähin parkkihalli on Elimäenkadun Aimo Park, johon on suora hissisisäänkäynti Nokiantieltä Akselin & Elinan vierestä. Kysy lisää, Jouko Raitanen puh. 0504695444  

  Navigoi kohteeseen
Sauna Ei saunaa

Jouko Raitanen

  050 469 5444
  Lähetä viesti

Haluatko lisätietoja juuri tästä kohteesta?

Syötä yhteystietosi niin lähetämme lisätietoja!

Kiitos, otamme sinuun pian yhteyttä!