Jaakonkatu 2, 01620 Vantaa

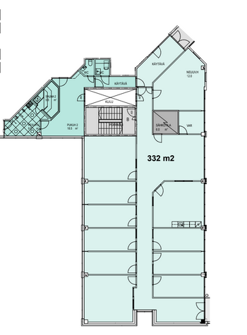
Toimistotila, 332 m², Huonetoimisto, oma sauna

0 € / kk

0 € / kk

Martinlaakso

Perustiedot

Kohdenumero 10942
Kohdetyyppi Toimistotila
Sijainti Jaakonkatu 2
Kaupunginosa Martinlaakso
Huoneluku Huonetoimisto, oma sauna
Pinta-ala 332,0 m²
Ranta Ei valittu
Rannan tyyppi Meri
Vapautuminen Heti vapaa
Vuokra / kk 0 €
SopimustyyppiToistaiseksi
Video

  Vuokrattavana 4.kerroksen saunallinen huonetoimisto (332 m2) hyvien kulkuyhteyksien varrelta lähellä Vantaankosken juna-asemaa. Yhteiskäyttöiset sosiaalitilat. Martintalo tarjoa vuokralaisilleen ja heidän vierailleen kaikki tarvittavat palvelut ml aulapalvelu, vuokrattavat neuvottelutilat, lounasravintola, kuntosali, catering-palvelu, sauna ja sähköautojen lataus.   

  Navigoi kohteeseen
Sauna Ei saunaa

Heli Reinberg

  040 647 4900
  Lähetä viesti

Haluatko lisätietoja juuri tästä kohteesta?

Syötä yhteystietosi niin lähetämme lisätietoja!

Kiitos, otamme sinuun pian yhteyttä!