Keskusta


| Kohdenumero | 10772 |
| Kohdetyyppi | Liiketila | Sijainti | Vuorikatu 35 |
| Kaupunginosa | Keskusta |
| Huoneluku | Sisäpihalla |
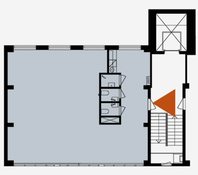
| Pinta-ala | 102,0 m² |
| Ranta | Ei valittu |
| Rannan tyyppi | Meri |
| Vapautuminen | Heti vapaa |
| Vuokra / kk | 0 € |
| Sopimustyyppi | Toistaiseksi |
Lahden keskustasta vuokrattavana edullinen toimitila ( 101 m2), joka soveltuu liiketilaksi tai toimistoksi. Tilaan sisäänkäynti on sisäpihalta. Omat sosiaalitilat. Kiinteistössä koneellinen jäähdytys, oma parkkihalli ja lounasravintola.
| Sauna | Ei saunaa |
Heli Reinberg
040 647 4900
Lähetä viesti