Pakkala




.jpeg)




.jpeg)
| Kohdenumero | 10756 |
| Kohdetyyppi | Varasto | Sijainti | Tulkintie 29 |
| Kaupunginosa | Pakkala |
| Huoneluku | |
| Pinta-ala | 10 890,0 m² |
| Ranta | Ei valittu |
| Rannan tyyppi | Meri |
| Vapautuminen | Vapautuu sopimuksen mukaan |
| Vuokra / kk | 0 € |
| Sopimustyyppi | Toistaiseksi |
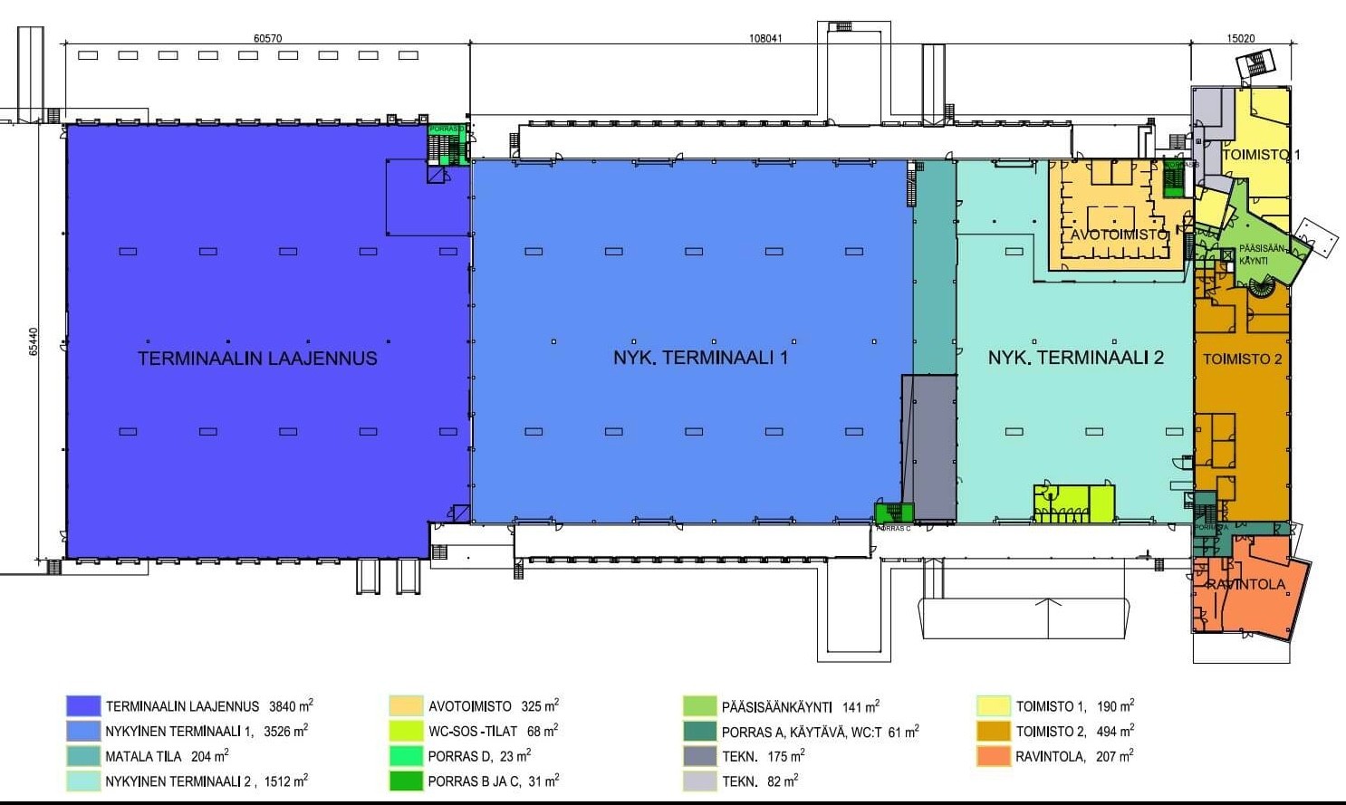
Vantaa Kehä III Pakkala, vuokralle tarjotaan korkeaa varastotilaa n 10890 m2. Läpivirtaava terminaali pääkaupunkiseudun parhaalla sijainnilla. Logistiikkatilojen korkeus n. 4 - 7 m. Kohteella isot piha-alueet. Toimitila sisältää toimistoa kakkoskerroksessa. Kohteella toimii suosittu henkilöstöruokala ja isolla terassilla varustettu upea saunaosasto, joka on vuokrattavissa vuokralaisten tilaisuuksiin. Kauppakeskus Jumbon monipuoliset palvelut sijaitsevat n. 5 minuutin ajomatkan päässä ja lentokenttäkin sijaitsee lähellä n. 4 km:n päässä. Vapautuminen sovitaan. Kysy lisää mika.tilli@rhg.fi, 040 7013005
| Sauna | Ei saunaa |
Mika Tilli
Välittäjä, LKV
0407013005
Lähetä viesti