Askonkatu 13, 15100 Lahti

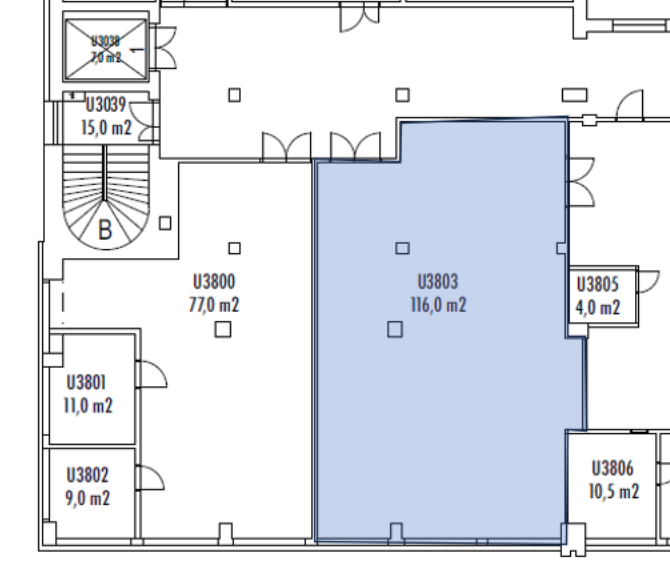
Varasto, 116 m², Vesipiste

0 € / kk

0 € / kk

Askonalue

Perustiedot

Kohdenumero 10719
Kohdetyyppi Varasto
Sijainti Askonkatu 13
Kaupunginosa Askonalue
Huoneluku Vesipiste
Pinta-ala 116,0 m²
Ranta Ei valittu
Rannan tyyppi Meri
Vapautuminen Heti vapaa
Vuokra / kk 0 €
SopimustyyppiToistaiseksi
Video

  Vuokrattavana valoisa toimitila ( 116 m2), joka soveltuu työtilaksi tai varastoksi. Tila sijaitsee 3.kerroksessa, johon tavarahissiyhteys lastauslaiturilta. Tilassa on vesipiste.   

  Navigoi kohteeseen
Sauna Ei saunaa

Heli Reinberg

  040 647 4900
  Lähetä viesti

Haluatko lisätietoja juuri tästä kohteesta?

Syötä yhteystietosi niin lähetämme lisätietoja!

Kiitos, otamme sinuun pian yhteyttä!