





















| Kohdenumero | 10639 |
| Kohdetyyppi | Tuotantotila | Sijainti | Luumäentie 6 |
| Kaupunginosa | Tuulissuo |
| Huoneluku | |
| Pinta-ala | 800,0 m² |
| Huoneiston kerros | 1 |
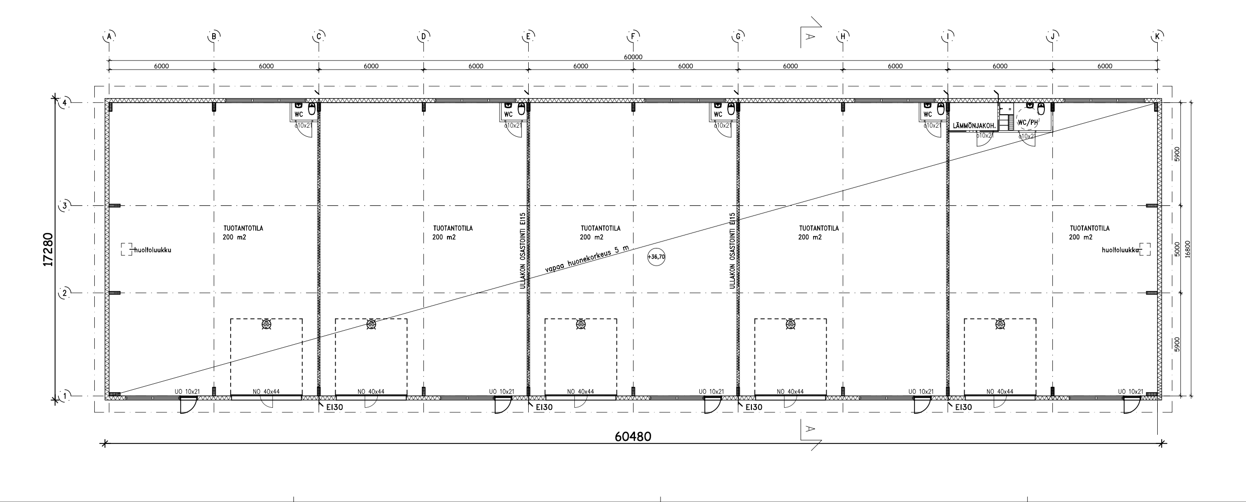
| Lisätietoja pinta-alasta | Halli on jaettavissa 200 m2 huoneistoihin |
| Lämmitysjärjestelmä | Maalämpö |
| Vapautuminen | Sopimuksen mukaan |
| Neliöhinta | 0 € |
| Hoitovastike | 1 496 € |
| Myyntihinta | 0 € |
| Velkaosuus | 0 € |
| Velaton hinta | 0 € |
Juuri valmistunut TUOTANTO- ja varastotila hyvällä sijainnilla Tuulissuon yritysalueella. Turun keskustaan on matkaa noin 10 kilometriä. Turun keskustaan ajat Luumäentieltä vain 15 minuutissa. Liikkuminen on helppoa Helsingin moottoritien läheisyyden ansiosta. Avannin alue on Turun ympäristön vetovoimaisempia yritysalueita, jonne on viime vuosina rakennettu valtakunnallisille toimijoille isoja toimitilakokonaisuuksia. Alue kehittyy nopeiten Turun alueen yritysalueista, joka näkyy runsaana toimitilarakentamisena. Laadukkaasti rakennettu toimitilakiinteistö on pinta-alaltaan 1 000 m2. Halli on mahdollista jakaa 200 m2 huoneistoihin. Jäljellä on vielä neljä huoneistoa. Kahteen huoneistoista on rakennettu valmiiksi toimisto keittiöllä. Jokaisessa tilassa oma ilmanvaihtokone lämmön talteenotolla. Nämä tilat ovat siis suunniteltu myös tuotanto- ja liikekäyttöön. Rakennuksen energialuokka on paras mahdollinen A. Hallin seinien eristevahvuus on 240 mm ja halli on suunniteltu täyslämpimäksi. Rakennuksessa on maalämpö ja oma tontti. Tilan vapaa korkeus on 5 metriä ja oven korkeus on 4,4 metriä. Tiloissa on lattiakaivot öljyn- ja hiekan erottimella. Lattiat pinnoitetaan epox-maalilla. Huoneistoihin on mahdollista jättää noin 50 % taloyhtiölaina, jonka maksuaika on 9 vuotta ja 5 kuukautta. Pyydä kohteen esite. Toimitilavälitys RHG Oy Juho Viljanen 040 741 7522 juho.viljanen@rhg.fi
| WC-tilat | Jokaisessa 200 m2 huoneistossa wc. |
| Kylpyhuone | Ei pesuhuonetta, mahdollista rakentaa |
| Sauna | Ei saunaa |
| Nimi | Kiinteistö Oy Vikkeläkuja 2 |
| Rakennusvuosi | 2025 |
| Lämmitysjärjestelmä | Maalämpö |
| Rakennusmateriaali | Puurunko |
| Kerroksia | 1 |
| Talossa hissi | Ei |
| Tontin koko | 3663 m² |
| Tontin omistus | Oma |
| Energialuokka | A |
| Liiketilojen määrä | 4 |
| Liiketilojen pinta-ala yhteensä | 800,0 m² |
| Hoitovastike | 1 496 € / kk |
| Yhtiövastike | 1 496 € / kk |
| Energiankulutus | Maalämpö sisältyy hoitovastikkeeseen |
| Vesimaksu | 1 € / hlö / kk |
| Lisätietoja vesimaksusta | Mittauksen mukaan |
| Muut maksut | Käyttösähkö, vesi ja alv. (hoitovastike ilmoitettu alv 0 %) |
Juho Viljanen
LKV
040 741 7522
Lähetä viesti