Länsi-Pasila


| Kohdenumero | 10555 |
| Kohdetyyppi | Toimistotila | Sijainti | Esterinportti 2 |
| Kaupunginosa | Länsi-Pasila |
| Kiinteistötunnus | |
| Huoneluku | |
| Pinta-ala | 833,0 m² |
| Kerrosmäärä | 1 |
| Tontti | Oma tontti |
| Vapautuminen | Heti vapaa |
| Vuokra / kk | 0 € |
| Sopimustyyppi | Toistaiseksi |
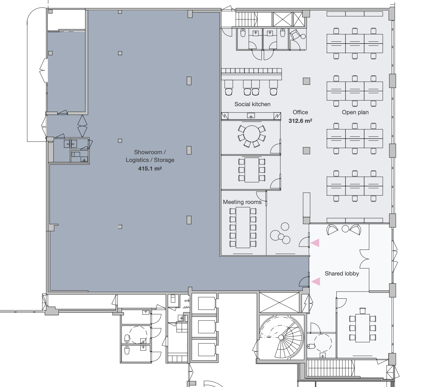
Toisen kerroksen toimistotila, josta aukeaa näkymä suoraan Triplaan. Toimistossa on avotilaa, tiimi- ja neuvotteluhuoneita ja pienempiä työhuoneita. Tilaa on mahdollista muunnella vuokralaisen tarpeiden mukaan ja jakaa pienemmiksi yksiköiksi. Kysy mika.tilli@rhg.fi
| Sauna | Ei saunaa |
| Rakennusvuosi | 1982 |
| Energiatodistus | Ei lain edellyttämää energiatodistusta |
Mika Tilli
Välittäjä, LKV
0407013005
Lähetä viesti