Länsi-Pasila


| Kohdenumero | 10547 |
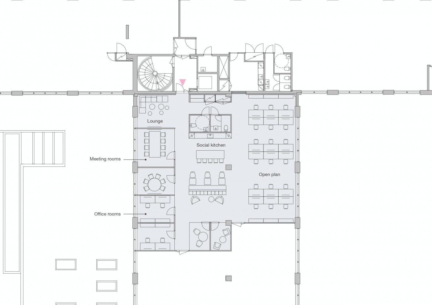
| Kohdetyyppi | Toimistotila | Sijainti | Esterinportti 2 |
| Kaupunginosa | Länsi-Pasila |
| Kiinteistötunnus | |
| Huoneluku | |
| Pinta-ala | 269,0 m² |
| Kokonaispinta-ala | 267,0 m² |
| Kerrosmäärä | 3 |
| Tontti | Oma tontti |
| Vapautuminen | Heti vapaa |
| Vuokra / kk | 0 € |
| Sopimustyyppi | Toistaiseksi |
Kompakti toimistotila sisältäen pienempiä työhuoneita, neuvotteluhuoneita ja avotilaa. Sijaitsee kolmannessa kerroksessa. Muokattavissa vuokralaisen tarpeiden mukaan.
| Sauna | Ei saunaa |
| Rakennusvuosi | 1982 |
| Energiatodistus | Ei lain edellyttämää energiatodistusta |
Mika Tilli
Välittäjä, LKV
0407013005
Lähetä viesti