Aurakatu 5, 20100 Turku

Toimistotila, 187 m²

3 980 € / kk

3 980 € / kk

Perustiedot

Kohdenumero 10509
Kohdetyyppi Toimistotila
Sijainti Aurakatu 5
Kaupunginosa
Huoneluku
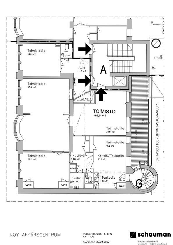
Pinta-ala 187,0 m²
Vapautuminen Heti vapaa
Vuokra / kk 3 980 €
SopimustyyppiToistaiseksi
Video

  Vuokrattavana 187m2 4.krs toimistotilat arvotalosta Turun ydinkeskustan ytimestä, osoitteessa Aurakatu 5, Turku. Vanhan ajan tunnelmallinen toimistotila, jossa puulattia ja reipas huonekorkeus. Jäähdytys ilmalämpöpumpuilla. Ikkunat Aurakadulle päin. Kaksi sisäänkäyntiä. Tilakokonaisuus, jossa avotilan lisäksi pari huonetta sekä taukotilat, suihku ja kahdet wc-tilat. Lisäksi huoneistossa on suuri parveke sisäpihan suuntaan. Kiinteistön julkisivuremontti valmistunut 2023 alussa. Vuokrapyyntö 3 980 euroa/kk (21,3 e/m2) + alv. Sähkö ja vesi kulutuksen mukaan. Heti vapaa Ei lain edellyttämää e-todistusta Lisää toimistotiloja www.rhg.fi   

  Navigoi kohteeseen
Sauna Ei saunaa
Nimi Kiinteistö Oy Affärscentrum Fastighets Ab
Talossa hissi Kyllä
Tontin omistus Oma
Energialuokka Ei lain edellyttämää energiatodistusta

Tony Rosenblad
Hallituksen puheenjohtaja
  +358 50 551 5375
  Lähetä viesti

Haluatko lisätietoja juuri tästä kohteesta?

Syötä yhteystietosi niin lähetämme lisätietoja!

Kiitos, otamme sinuun pian yhteyttä!