Suokallionkuja 8, 01740 Vantaa

Tuotantotila, 4700 m²

0 € / kk

0 € / kk

Tuupakka

Perustiedot

Kohdenumero 10316
Kohdetyyppi Tuotantotila
Sijainti Suokallionkuja 8
Kaupunginosa Tuupakka
Kiinteistötunnus
Huoneluku
Pinta-ala 4 700,0 m²
Tontti Oma tontti
Vapautuminen Heti vapaa
Vuokra / kk 0 €
SopimustyyppiToistaiseksi
Video

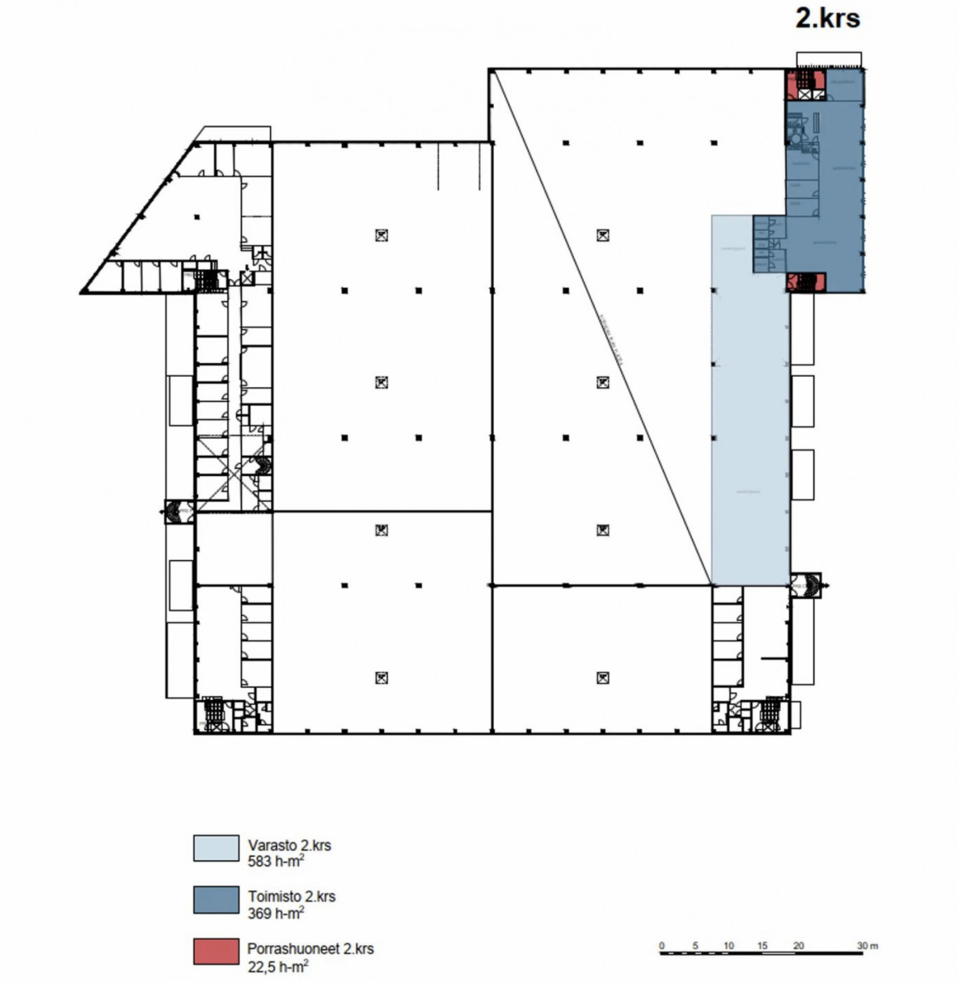
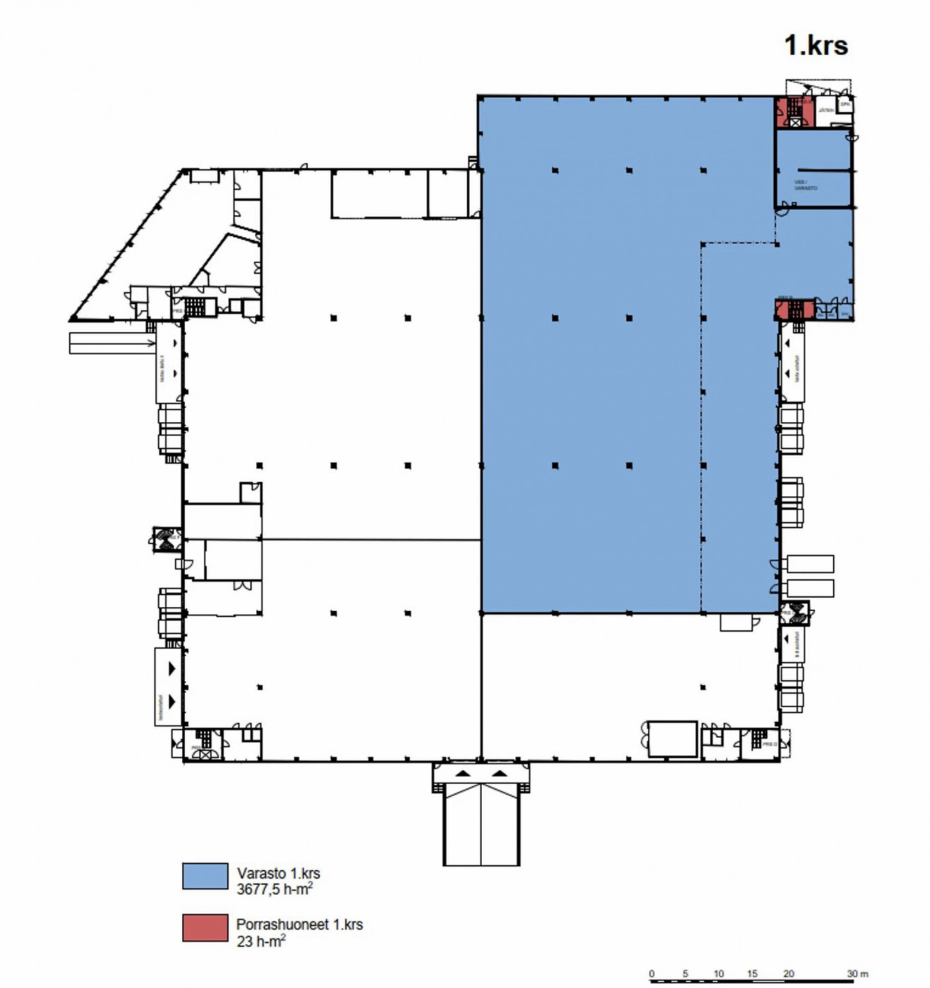
  Vuokrataan 4700m² tilakokonaisuus, joka koostuu 3700m² varasto- ja tuotantotilasta, 540m² parvi-ja varastotilasta sekä noin 450m² toimisto- ja sosiaalitiloista. Varastotilassa on useita lastaustaskuja, lastauslaituri sekä nostopöytä. Varastotilan vapaa korkeus on 12 metriä ja lattian kantavuus 6000 kg/ m². Alkukesästä 2020 valmistunut moderni varasto-/logistiikkakiinteistö on logistiikan prime -paikalla, Helsinki - Vantaan lentoaseman vieressä. Suuri piha-alue mahdollistaa sujuvan rekkaliikenteen, samoin kuin erillään pidettävän henkilöautoliikenteen. Pihalla on runsaasti parkkipaikkoja henkilöautoille. Kysy lisää Jouko Raitanen Helsinki puh. 0504695444  

  Navigoi kohteeseen
Sauna Ei saunaa
Energiatodistus Ei lain edellyttämää energiatodistusta

Jouko Raitanen

  050 469 5444
  Lähetä viesti

Haluatko lisätietoja juuri tästä kohteesta?

Syötä yhteystietosi niin lähetämme lisätietoja!

Kiitos, otamme sinuun pian yhteyttä!