















								















								| Kohdenumero | 10254 | 
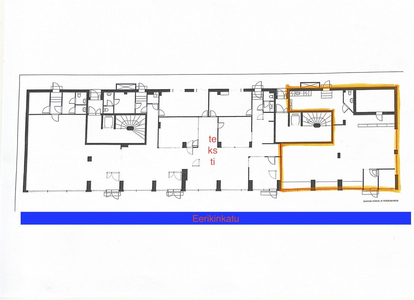
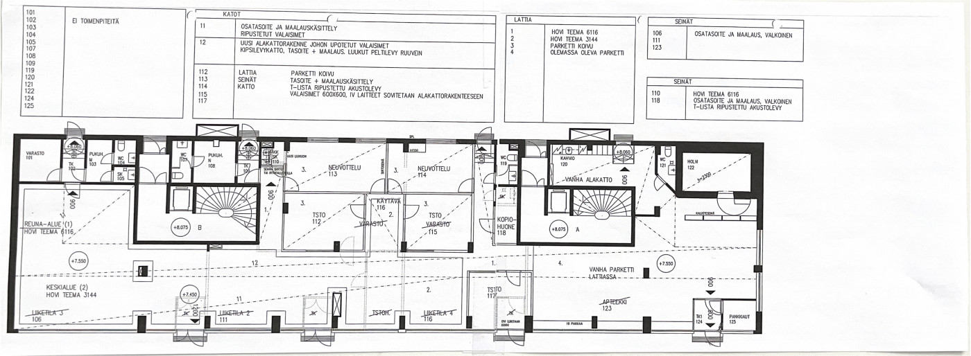
| Kohdetyyppi | Liiketila | Sijainti | Eerikinkatu 27 | 
| Kaupunginosa | |
| Huoneluku | |
| Pinta-ala | 143,0 m² | 
| Vapautuminen | Vapautuu sopimuksen mukaan | 
| Vuokra / kk | 2 100 € | 
| Sopimustyyppi | Toistaiseksi | 
Vuokrattavana katutason n. 143m2 liikehuoneisto näkyvällä paikalla Eerikinkadun ja Käsityöläiskadun kulmassa, osoitteessa Eerikinkatu 27, Turku Isot näyteikkunat Eerikinkadulle päin. Tilassa toimii tällä hetkellä Outlet-ish niminen vaateliike. Vuokrapyyntö 2 100 euroa/kk + alv. Sähkö ja vesi kulutuksen mukaan. Vapautuu sopimuksen mukaan nopeasti. Autopaikkoja vuokrattavissa taloyhtiön sisäpihalta. Lisää toimitiloja www.rhg.fi Kohteella ei lain edellyttämää energiatodistusta tai energialuokka ei tiedossa.
| Sauna | Ei saunaa | 
								
								Tony Rosenblad
								Hallituksen puheenjohtaja
								
								  +358 50 551 5375								
								  Lähetä viesti