Länsi-Avantintie 10, 20660 Lieto

Tuotantotila, 2000 m²

0 € / kk

0 € / kk

Perustiedot

Kohdenumero 10247
Kohdetyyppi Tuotantotila
Sijainti Länsi-Avantintie 10
Kaupunginosa
Kiinteistötunnus
Huoneluku
Pinta-ala 2 000,0 m²
Tontti Oma tontti
Vapautuminen Vapautuu sopimuksen mukaan
Vuokra / kk 0 €
SopimustyyppiToistaiseksi
Video

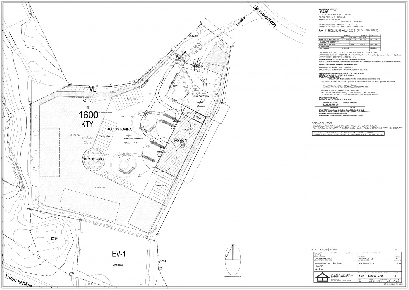
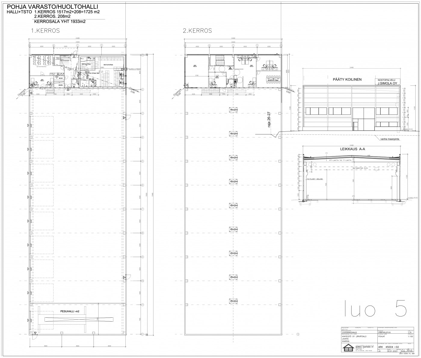
  Vuokrataan korkea, raskaalle kalustolle sopiva n. 2 000 m2 uudiskohde, Liedon Avantista hyvältä paikalta, osoitteessa Länsi-Avantintie 10, Lieto. Tontin rakennusoikeus noin 4 000 m2, hallin mitat 150 metriä x 24 metriä. Uudiskohteesta n. 2 000m2 jää omistajan omaan käyttöön ja loppu tilalle etsitään ulkopuolinen käyttäjä. Omistaja toimii raskaan kalustona alalla, ja samaan kiinteistöön sopii esim. saman alan toimija. Halliin tulee kattonosturit ja pihatilaa jää varmasti tarpeeksi. 2 000m2 tila jaettavissa tarvittaessa 1 000 m2 / 1 000 m2. Hallin vapaa korkeus noin 9 metriä, nosturin alaosaan 7,4 metriä. Liitteenä olevassa pohjakuvassa on omistajan omaan käyttöön tuleva halli puolikas. Rakennustyöt aloitetaan alkuvuodesta 2023 ja tässä vaiheessa vuokralaisen on mahdollista vaikuttaa omiin tilaratkaisuihin. Lähiympäristöön on valmistunut lukuisia uusia toimitilakiinteistöjä viime vuosina. Avanti on Turun alueen vetovoimaisempia ja nopeimmin kehittyneimpiä yritysalueita, jossa vapaat toimitilat ovat vähissä. Alueelle on valmistunut suuria toimitilahankkeita lähivuosina, kuten DB Schenkerin 19 000 m2 logistiikkahanke ja Warasto Finlandin noin 10 000 m2 logistiikkahanke. Viimeisimpänä alueelle sijoittuneista yrityksistä on Puuilo. Valmistuu alkuvuodesta 2024 Kysyy lisätietoja Lisää toimitiloja www.rhg.fi  

  Navigoi kohteeseen
Sauna Ei saunaa
Energiatodistus Ei lain edellyttämää energiatodistusta

Tony Rosenblad
Hallituksen puheenjohtaja
  +358 50 551 5375
  Lähetä viesti

Haluatko lisätietoja juuri tästä kohteesta?

Syötä yhteystietosi niin lähetämme lisätietoja!

Kiitos, otamme sinuun pian yhteyttä!