





| Kohdenumero | 10117 |
| Kohdetyyppi | Tuotantotila | Sijainti | Kaitilantie 30 |
| Kaupunginosa | |
| Huoneluku | |
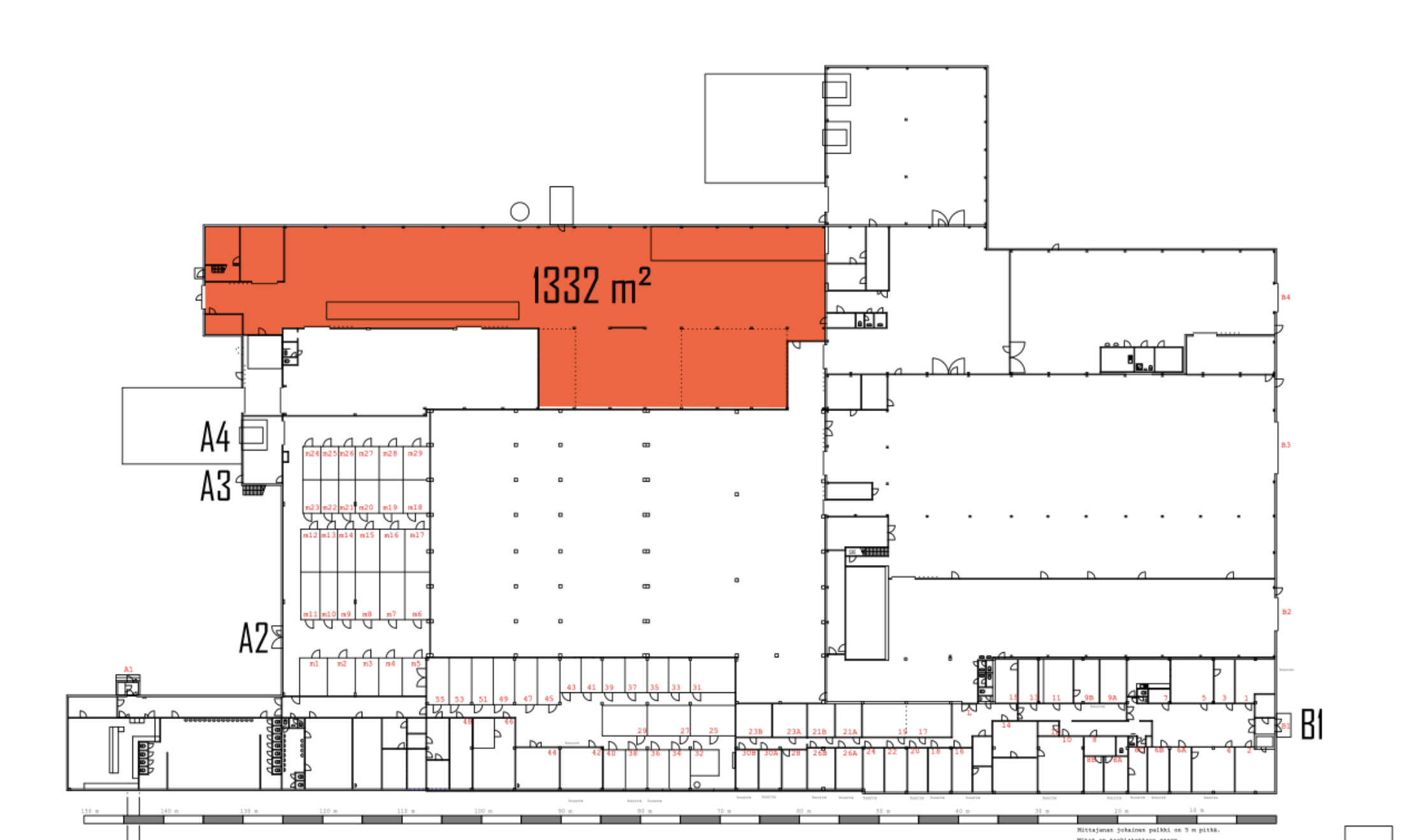
| Pinta-ala | 1 332,0 m² |
| Vapautuminen | Heti vapaa |
| Vuokra / kk | 0 € |
| Sopimustyyppi | Toistaiseksi |
Vuokrataan vaatimaton varasto- tai tuotantotila 1332 m². Neliöhinnaltaan erittäin edullisen puolilämpimän tilan iso nosto-ovi (aukko L3525xK4060 mm) mahdollistaa sisäänajon isommallakin kalustolla. Tila on kokonaan sprinklattu. Kuukausivuokra 4 €/m² + alv. Kiinteistö sijaitsee Orimattilassa tunnin ajomatkan päässä Helsingistä, Lahti taas on vain varttitunnin päässä. Kaitilan vaatetehtaana tunnettu kiinteistö on rakennettu useassa vaiheessa 1960- ja 1970-luvuilla. Kysy lisää Jouko Raitanen Helsinki puh. 0504695444
| Sauna | Ei saunaa |
Jouko Raitanen
050 469 5444
Lähetä viesti