Tekniikantie 4, 02130 Espoo

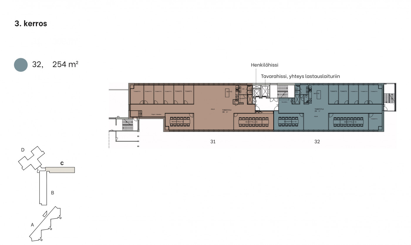
Toimistotila, 254 m²

0 € / kk

0 € / kk

Otaniemi

Perustiedot

Kohdenumero 10075
Kohdetyyppi Toimistotila
Sijainti Tekniikantie 4
Kaupunginosa Otaniemi
Huoneluku
Pinta-ala 254,0 m²
Vapautuminen Heti vapaa
Vuokra / kk 0 €
SopimustyyppiToistaiseksi
Video

  Vuokrataan kolmannen kerroksen 254m2 toimistotila. Aallonharjan toimistokiinteistö sijaitsee Espoon Otaniemessä eli suomalaisen insinööriosaamisen ja huippuinnovaatioiden pääkallopaikalla. Täällä riittää ”pöhinää”, verkostoitumismahdollisuuksia sekä synergiaetuja erityisesti tekniikan alan toimijoille Autopaikkoja vuokrattavana kiinteistön pihalta. Metroasemalle on 350 m (Aalto-Yliopisto). Bussipysäkille 300 m (108N, 111, 555). Aallonharjan A-talon ravintolaa uudistetaan parhaillaan. Luvassa on tuoreista raaka-aineista valmistettuja ja hyvää työvirettä tukevia makuelämyksiä.
 
D-talon viihtyisä kahvila palvelee myös ravintolan uudistuksen aikana. Herkulliset kahvit ja tuoreet leivonnaiset, aamiaistuotteet ja välipalat – ota mukaan tai nauti paikan päällä! Kysy lisää Jouko Raitanen Helsinki puh. 0504695444   

  Navigoi kohteeseen
Sauna Ei saunaa

Jouko Raitanen

  050 469 5444
  Lähetä viesti

Haluatko lisätietoja juuri tästä kohteesta?

Syötä yhteystietosi niin lähetämme lisätietoja!

Kiitos, otamme sinuun pian yhteyttä!