Linnoitustie 3, 02600 Espoo

Toimistotila, 191 m², 8 h + avotila

0 € / kk

0 € / kk

Leppävaara

Perustiedot

Kohdenumero 10017
Kohdetyyppi Toimistotila
Sijainti Linnoitustie 3
Kaupunginosa Leppävaara
Huoneluku 8 h + avotila
Pinta-ala 191,0 m²
Vapautuminen Heti vapaa
Vuokra / kk 0 €
SopimustyyppiToistaiseksi
Video

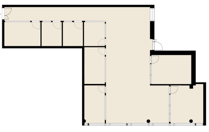
  Säteri Business Parkista vuokrattavana toimisto (191 m2) 4.kerroksen pientoimistoalueelta. Toimisto käsittää 8 huonetta + avotilan. Vuokralaisilla on käytössä yhteiskäyttöiset tauko- ja sosiaalitilat. Kohde sijaitsee Etelä-Leppävaarassa Raide-Joken varrella ja on hyvin tavoitettavissa sekä julkisilla kulkuvälineillä että omalla autolla. Kysy lisää sp. heli.reinberg@rhg.fi, toimitilat www.rhg.fi  

  Navigoi kohteeseen
Sauna Ei saunaa

Heli Reinberg

  040 647 4900
  Lähetä viesti

Haluatko lisätietoja juuri tästä kohteesta?

Syötä yhteystietosi niin lähetämme lisätietoja!

Kiitos, otamme sinuun pian yhteyttä!