











| Kohdenumero | 9904 |
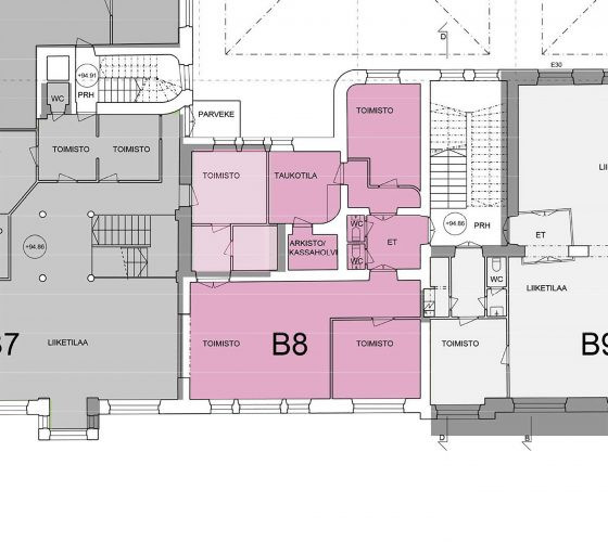
| Kohdetyyppi | Toimistotila | Sijainti | Kuninkaankatu 21 |
| Kaupunginosa | |
| Huoneluku | |
| Pinta-ala | 127,0 m² |
| Vapautuminen | Heti vapaa |
| Vuokra / kk | 0 € |
| Sopimustyyppi | Toistaiseksi |
Tampereen ytimessä vilkkaan kävelykadun varrella, sata metriä pääkatu Hämeenkadulta vapautumassa 2.krs toimistotila. Autopaikkoja löytyy omasta autohallista sekä lähellä olevasta pysäköintitalosta. Kauppaneuvos Tirkkosen kauppahuoneensa liiketaloksi ja omaksi asunnokseen rakennuttama liiketalo on yksi Tampereen kauneimpia helmiä. Jugendtyylisen talon suunnittelivat arkkitehdit Lars Sonck ja Birger Federley. Pikanttina yksityiskohtana katutason liiketiloissa on nähtävissä 1900-luvun alun huipputekniikkaa edustanut putkipostilaitteisto, joka on kuin taideteos itsessään. Kiinteistön arkkitehtuuri on täynnä huoliteltuja yksityiskohtia kuten seinäreliefejä, puuseppien taidokkaasti tekemiä kaiteita ja värikkäitä kakluuneja. Vuonna 1901 valmistunutta vanhaa osaa täydentää 1986 valmistunut laajennusosa ja 2010-luvulla katettu kaunis sisäpiha, jossa toimii mm. kahvila. Lisää toimitiloja: www.rhg.fi
| Sauna | Ei saunaa |
Mikko Wallgren
Työntekijä
045 6102 752
Lähetä viesti