Jaakonkatu 2, 01620 Vantaa

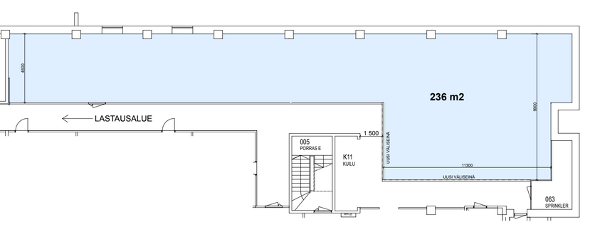
Varasto, 236 m², Kellarikerroksen varastotila

0 € / kk

0 € / kk

Vantaankoski

Perustiedot

Kohdenumero 9888
Kohdetyyppi Varasto
Sijainti Jaakonkatu 2
Kaupunginosa Vantaankoski
Huoneluku Kellarikerroksen varastotila
Pinta-ala 236,0 m²
Vapautuminen Heti vapaa
Vuokra / kk 0 €
SopimustyyppiToistaiseksi
Video

  Hyvien kulkuyhteyksien varrelta lähellä Vantaankosken juna-asemaa vuokrattavana kellarikerroksen varasto ( 236 m2). Kohteessa aulapalvelu, vuokrattavia neuvottelutiloja, lounasravintola, kuntosali ja saunatilat.  

  Navigoi kohteeseen
Sauna Ei saunaa

Heli Reinberg

  040 647 4900
  Lähetä viesti

Haluatko lisätietoja juuri tästä kohteesta?

Syötä yhteystietosi niin lähetämme lisätietoja!

Kiitos, otamme sinuun pian yhteyttä!