Leppävaara
































| Kohdenumero | 9681 |
| Kohdetyyppi | Toimistotila | Sijainti | Linnoitustie 2 a |
| Kaupunginosa | Leppävaara |
| Huoneluku | |
| Pinta-ala | 998,0 m² |
| Vapautuminen | Heti vapaa |
| Vuokra / kk | 0 € |
| Sopimustyyppi | Toistaiseksi |
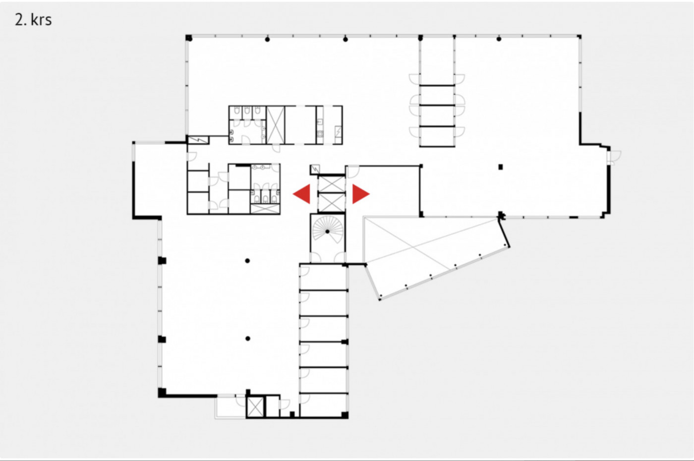
Vuokrataan 2. kerroksen toimistotilaa, yhteensä noin 998 m². Tiloihin pääsee suoraan hissillä business parkin aulasta. Isot, avarat ikkunat tuovat valoa tilaan. Tila on mahdollista vuokrata 3. kerroksen 356m2 tilan kanssa. Kohde sijaitsee erinomaisella paikalla Leppävaarassa; juna-asema ja Sellon palvelut ovat vain parin minuutin kävelyn päässä. Autopaikkoja vuokrattavissa kiinteistön kellarikerroksen parkkihallista sekä piha-alueelta. Kysy lisää: jouko.raitanen@rhg.fi/0504695444
| Sauna | Ei saunaa |
Jouko Raitanen
050 469 5444
Lähetä viesti