Kalasatama








| Kohdenumero | 9674 |
| Kohdetyyppi | Toimistotila | Sijainti | Panimokatu 4 |
| Kaupunginosa | Kalasatama |
| Huoneluku | |
| Pinta-ala | 232,0 m² |
| Vapautuminen | Heti vapaa |
| Vuokra / kk | 0 € |
| Sopimustyyppi | Toistaiseksi |
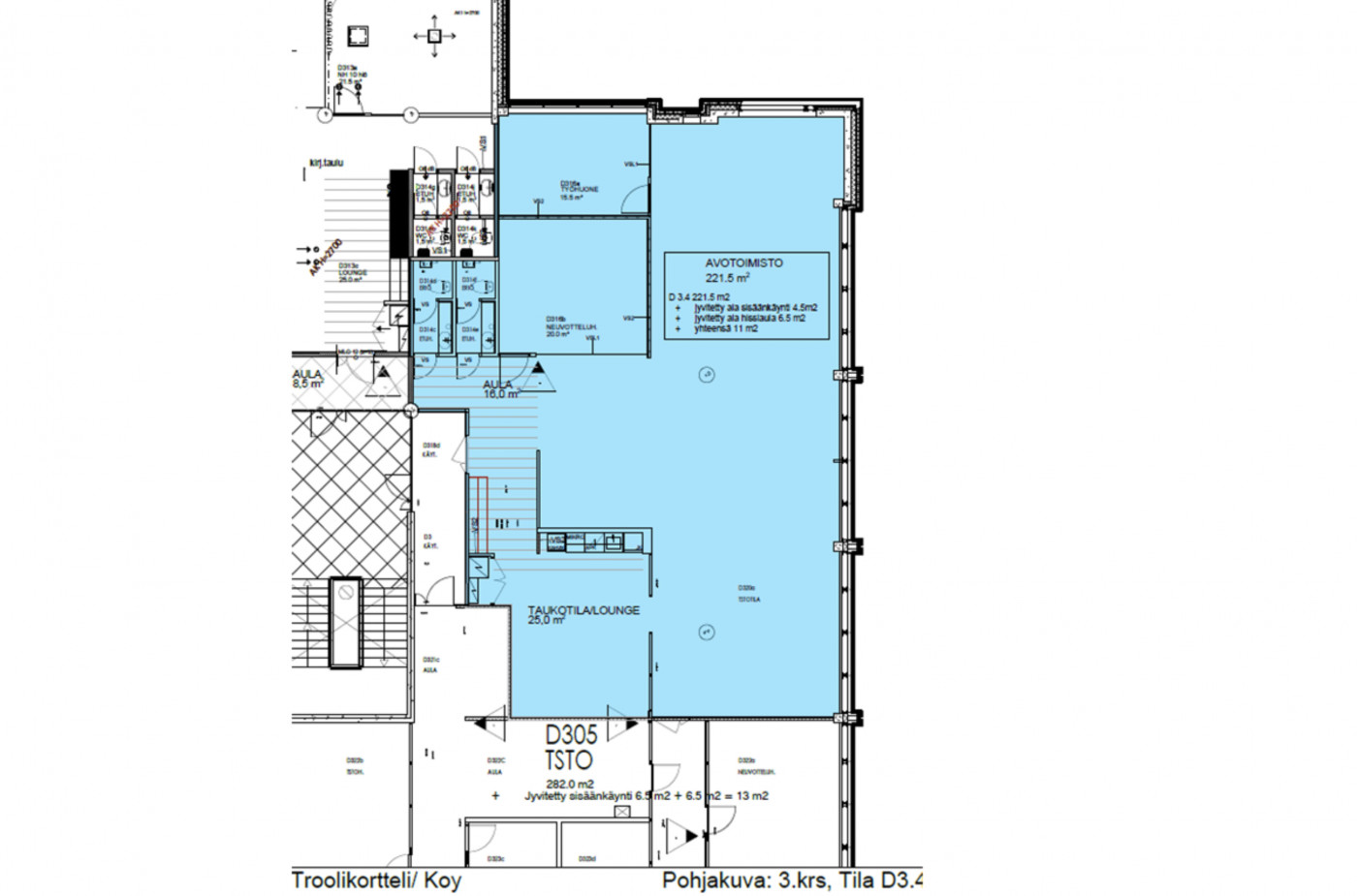
Hiljattain remontoitu, tehokas toimistotila 221,5 m² (+ aulajyvitys 11 m²). Tämän toimiston valoisaan avotilaan mahtuu 18 työpistettä, lisäksi tilassa on neuvotteluhuone 9 hengelle ja hiljainen huone, johon sopii 2 työpistettä. Keittiö + loungetila sijaitsevat omassa kulmassaan. Ikkunat itään kadulle ja länteen sisäpihalle. Tilassa on datakaapelointi. Kysy lisää Jouko Raitanen Helsinki puh. 0504695444
| Sauna | Ei saunaa |
Jouko Raitanen
050 469 5444
Lähetä viesti