











| Kohdenumero | 9655 |
| Kohdetyyppi | Toimistotila | Sijainti | Eliel Saarisen tie 2 |
| Kaupunginosa | Haaga |
| Huoneluku | |
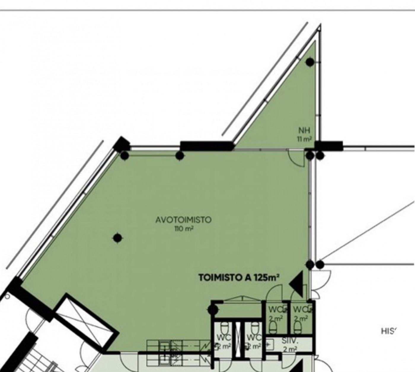
| Pinta-ala | 125,0 m² |
| Vapautuminen | Heti vapaa |
| Vuokra / kk | 0 € |
| Sopimustyyppi | Toistaiseksi |
Vuokrataan X Haaga kiinteistössä kolmannen kerroksen moderni ja valoisa 125m2 toimistotila. Toimistotalo sijaitsee Pohjois-Haagassa, Hämeenlinnanväylän varrella ja Keskuspuiston kainalossa. X Haaga on loistava yrityksen kotipesä, josta koko pääkaupunkiseutu on helposti saavutettavissa autolla, bussilla tai junalla. 2024 liikennöinnin aloittavan Raide-Jokeri pikaraitiotien pysäkki on aivan X Haagan vieressä. Kiinteistö sijaitsee lyhyen matkan päässä Helsingin keskustasta ja 20 minuuttia lentoasemalta. Kiinteistön välittömässä läheisyydessä on hyvät palvelut: mm. päivittäistavarakauppa, hotelli ja monipuoliset liikuntamahdollisuudet. Erinomainen sijainti Hämeenlinnanväylän varrella tuo X Haagalle päivittäin 40 000 ajoneuvossa matkustavan ihmisen huomion. Kiinteistössä palvelee laadukas lounasravintola. Lisäksi vuokrattavia neuvottelutiloja ja saunaosasto sekä kuntosali vuokralaisten käyttöön. Autopaikkoja vuokrattavissa kiinteistössä. Kysy lisää Jouko Raitanen Helsinki puh. 0504695444
| Sauna | Ei saunaa |
Jouko Raitanen
050 469 5444
Lähetä viesti