Jaakonkatu 2, 01620 Vantaa

Toimistotila, 146 m², Toimistotila

0 € / kk

0 € / kk

Vantaankoski

Perustiedot

Kohdenumero 9581
Kohdetyyppi Toimistotila
Sijainti Jaakonkatu 2
Kaupunginosa Vantaankoski
Huoneluku Toimistotila
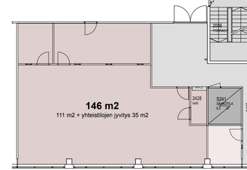
Pinta-ala 146,0 m²
Vapautuminen Heti vapaa
Vuokra / kk 0 €
SopimustyyppiToistaiseksi
Video

  Vuokrattavana 2.kerroksen toimisto ( 146 m2) hyvien kulkuyhteyksien varrelta lähellä Vantaankosken juna-asemaa. Toimistossa avotilan lisäksi 2 huonetta; Toimisto sijaitsee pientoimistoalueen yhteydessä ja vuokralaisen käystössä on yhteiset keittiö-, lounge- ja sosiaalitilat. Martintalo tarjoa vuokralaisilleen ja heidän vierailleen kaikki tarvittavat palvelut ml aulapalvelu, vuokrattavat neuvottelutilat, lounasravintola, kuntosali, catering-palvelu, sauna ja sähköautojen lataus.   

  Navigoi kohteeseen
Sauna Ei saunaa

Toimitilavälitys RHG Oy
Asuntomyymälä
  
  Lähetä viesti

Haluatko lisätietoja juuri tästä kohteesta?

Syötä yhteystietosi niin lähetämme lisätietoja!

Kiitos, otamme sinuun pian yhteyttä!