Pursimiehenkatu 29-31, 00150 Helsinki

Toimistotila, 623 m²

0 € / kk

0 € / kk

Punavuori

Perustiedot

Kohdenumero 9527
Kohdetyyppi Toimistotila
Sijainti Pursimiehenkatu 29-31
Kaupunginosa Punavuori
Huoneluku
Pinta-ala 623,0 m²
Huoneiston kerros2
Vapautuminen Heti vapaa
Vuokra / kk 0 €
SopimustyyppiToistaiseksi
Video

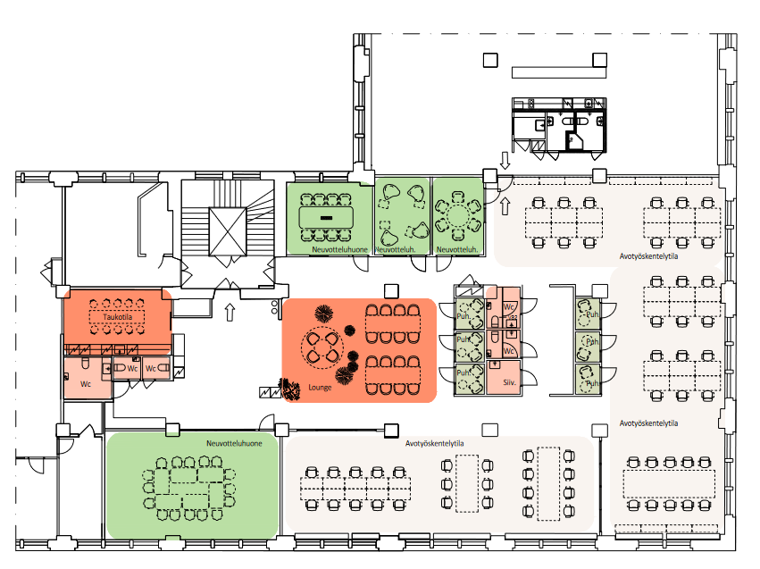
  Punavuoren suositusta Merikorttelissa vuokrattavana muuttovalmis toimisto ( 623 m2). Tila sijaitsee 3.kerroksessa ja siinä on avotilan lisäksi muutamia neuvottelu - ja hiljaisen työskentelyn huoneita. Kohteesta löytyy vuokrattavia neuvottelutiloja, parkkihalli, lounasravintola/ kahvila ja pöivittäistavarakauppa.   

  Navigoi kohteeseen
Sauna Ei saunaa

Heli Reinberg

  040 647 4900
  Lähetä viesti

Haluatko lisätietoja juuri tästä kohteesta?

Syötä yhteystietosi niin lähetämme lisätietoja!

Kiitos, otamme sinuun pian yhteyttä!