Vakiotie 13 A, 21420 Lieto

Tuotantotila, 720 m²

5 760 € / kk

5 760 € / kk

Perustiedot

Kohdenumero 9503
Kohdetyyppi Tuotantotila
Sijainti Vakiotie 13 A
Kaupunginosa
Huoneluku
Pinta-ala 720,0 m²
Kokonaispinta-ala 720,0 m²
Vapautuminen Vapautuu: 01.12.2025
Vuokra / kk 5 760 €
VuokravakuusSopimuksen mukaan
SopimustyyppiToistaiseksi
Video

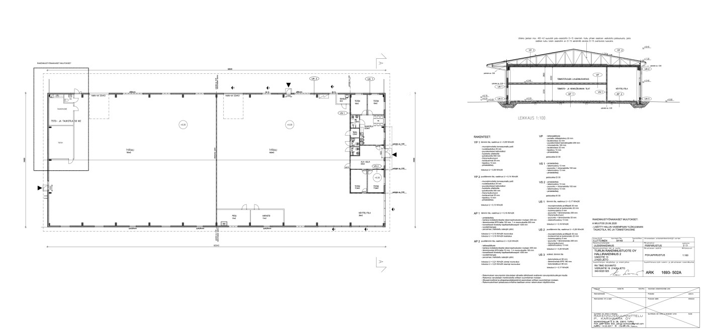
  Vuokrattavana 720 m2 toimitilat Tuulissuon teollisuusalueella, osoitteessa Vakiotie 13 A b, Lieto. Näkyvä sijainti Ohikulkutien varrella. Tuotantotilan lisäksi näyttävä ja valoisa showroom osasto sekä 93 m2 toimistotilat. Hallin puolella lattiakaivot, lattian kantavuus hyvää. Nosto-ovien korkeus 4,2 m. Jos nykyinen toimistotilan määrä ei ole riittävä, lisätilaa on mahdollista rakentaa 93 neliömetriä nykyisen toimistotilan toiseen kerrokseen. Kiinteistöön tulee valokuitu. Vuokrapyyntö 5 760 euroa/kk (8,00/m2) +alv. Sähkö ja vesi kulutuksen mukaan. Pihanhoidosta aiheutuneita kuluja jyvitetään vuokrattujen neliöiden mukaan. Vapautuu 1.12.2025 Lisää toimitiloja www.rhg.fi   

  Navigoi kohteeseen
Sauna Ei saunaa

Tony Rosenblad
Hallituksen puheenjohtaja
  +358 50 551 5375
  Lähetä viesti

Haluatko lisätietoja juuri tästä kohteesta?

Syötä yhteystietosi niin lähetämme lisätietoja!

Kiitos, otamme sinuun pian yhteyttä!