Leppävaara








| Kohdenumero | 9350 |
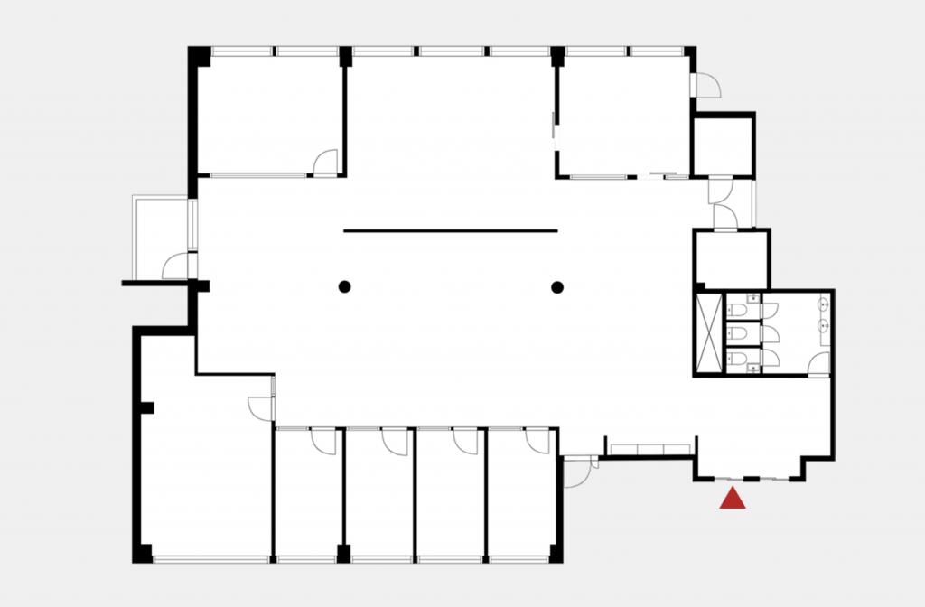
| Kohdetyyppi | Toimistotila | Sijainti | Linnoitustie 2 a |
| Kaupunginosa | Leppävaara |
| Huoneluku | |
| Pinta-ala | 356,0 m² |
| Vapautuminen | Heti vapaa |
| Vuokra / kk | 0 € |
| Sopimustyyppi | Toistaiseksi |
Vuokrataan 3. kerroksen toimistotilaa, yhteensä 356 m². Tiloihin pääsee suoraan hissillä business parkin aulasta. Kohde sijaitsee erinomaisella paikalla Leppävaarassa; juna-asema ja Sellon palvelut ovat vain muutaman minuutin kävelymatkan päässä. Kysy lisää Jouko Raitanen Helsinki puh. 0504695444
| Sauna | Ei saunaa |
Jouko Raitanen
050 469 5444
Lähetä viesti