























| Kohdenumero | 9332 |
| Kohdetyyppi | Toimistotila | Sijainti | Aleksanterinkatu 9A |
| Kaupunginosa | |
| Huoneluku | |
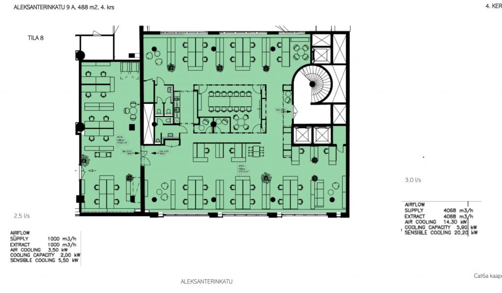
| Pinta-ala | 488,0 m² |
| Vapautuminen | Heti vapaa |
| Vuokra / kk | 0 € |
| Sopimustyyppi | Toistaiseksi |
Vuokrataan remontoitu 4. kerroksen 488m2 muuttovalmis toimistotila erinomaisella sijainnilla Helsingin ytimessä. Toimisto on laajennettavissa 1128m2.Tilassa iso neuvottelutila sekä vetäytymistiloja. Luksusta keittiössä ja hienostunutta tunnelmaa saniteettitiloissa. Loistava sijainti Kluuvisssa, keskellä ydinkeskustan palveluita erinomaisten kulkuyhteyksien päässä. Kiinteistössä on vuokralaisille varastoja vuokrattavana, pyörien säilytys, suihkutilat ja pukuhuoneet. Pysäköintihalliin pääsee kuivin jaloin hissiyhteydellä Europark Kluuviin ja Aimo Park Kluuviin. Kysy lisää Jouko Raitanen Helsinki puh. 0504695444
| Sauna | Ei saunaa |
Jouko Raitanen
050 469 5444
Lähetä viesti