Tapiola






| Kohdenumero | 9268 |
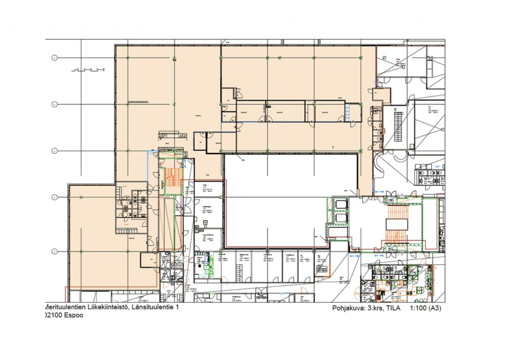
| Kohdetyyppi | Toimistotila | Sijainti | Länsituuli 1 |
| Kaupunginosa | Tapiola |
| Huoneluku | |
| Pinta-ala | 967,0 m² |
| Vapautuminen | Heti vapaa |
| Vuokra / kk | 0 € |
| Sopimustyyppi | Toistaiseksi |
Vuokrataan kolmannen kerroksen 967m2 siistiä avotilaa, jossa muutama neuvotteluhuone. Kiinteistö sijaitsee kauppakeskus AINOAn vieressä Espoon Tapiolan keskustassa. Kiinteistö sijaitsee hyvien kulkuyhteyksien varrella aivan bussi- ja metroaseman vieressä. Kysy lisää Jouko Raitanen Helsinki puh. 0504695444
| Sauna | Ei saunaa |
Jouko Raitanen
050 469 5444
Lähetä viesti