Askonalue




| Kohdenumero | 9204 |
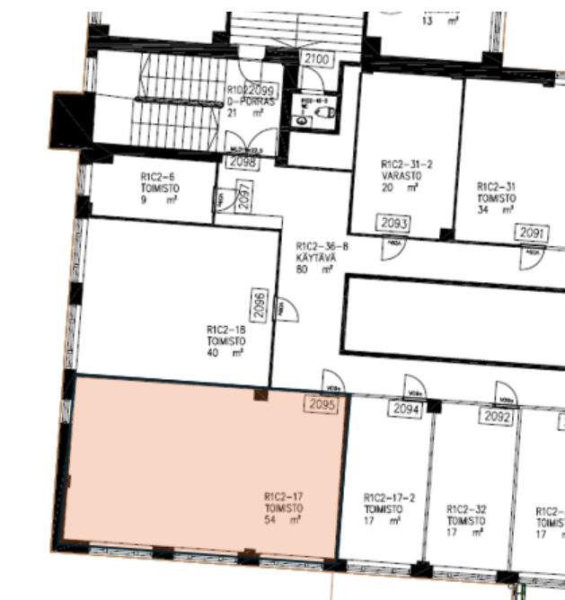
| Kohdetyyppi | Toimistotila | Sijainti | Askonkatu 9 |
| Kaupunginosa | Askonalue |
| Huoneluku | Avotoimisto |
| Pinta-ala | 54,0 m² |
| Vapautuminen | Heti vapaa |
| Vuokra / kk | 0 € |
| Sopimustyyppi | Toistaiseksi |
Vuokrattavana toimistotila (54 m2) Askonalueelta Matkakeskuksen läheltä. Avotoimisto sijaitsee 2.kerroksessa.. Yhteiskäyttöiset neuvottelu-, keittiö ja sosiaalitilat. Uniikki ja nopeasti kehittyvä Askonalue tarjoa erilaisia tilaratkaisuja. Teollisuushenkisestä kiinteistöstä löytyy ainutlaatuisesti uudistettuja tiloja sekä ns raakaa tilaa, joka räätälöidään asiakkaan tarpeiden mukaan. Vuokralaisia ja heidän vieraita palvelee kaksi ravintolaa ja kokouskeskus. Kysy lisää sp: heli.reinberg@rhg.fi.
| Sauna | Ei saunaa |
Heli Reinberg
040 647 4900
Lähetä viesti