Kristiinankatu 8, 20100 Turku

Liiketila, 2568 m²

0 € / kk

0 € / kk

Perustiedot

Kohdenumero 9176
Kohdetyyppi Liiketila
Sijainti Kristiinankatu 8
Kaupunginosa
Huoneluku
Pinta-ala 2 568,0 m²
Vapautuminen Heti vapaa
Vuokra / kk 0 €
SopimustyyppiToistaiseksi
Video

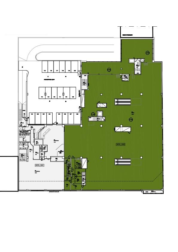
  Vuokrataan 2 568m2 liiketilaa Turun keskustassa, kauppakeskus Centrumissa osoitteessa Kristiinankatu 8, Turku. Tiloissa on toiminut aikaisemmin Halosen vaatemyymälä. Tilakokonaisuus, jossa myymälätilaa kahdessa kerroksessa. 1.krs 504,5 m2 ja 2.krs 2 064 m2. 2.krs tilat voidaan jakaa kahteen tai kolmeen tilaan. Tällöin sisäänkäynti toiseen kerrokseen 2064 m2 myymälätilaan tapahtuu liukuportailla K-Supermarketin yhteydestä. Parkkipaikkoja kiinteistössä löytyy 88kpl ja Stockan P-halli vastapäätä on 160 ap lisää. Kellarissa erikseen vuokrattavia varastoja, koko tilan vuokrauksen yhteydessä. Heti vapaa. Ei lain edellyttämää e-todistusta. Lisää toimitiloja www.rhg.fi 360 esittely kierros: https://nordeahenkivakuutustoimitilat.fi/toimitila/liiketila-2064m2-turku-keskusta-kristiinankatu-8-839605/   

  Navigoi kohteeseen
Sauna Ei saunaa

Tony Rosenblad
Hallituksen puheenjohtaja
  +358 50 551 5375
  Lähetä viesti

Haluatko lisätietoja juuri tästä kohteesta?

Syötä yhteystietosi niin lähetämme lisätietoja!

Kiitos, otamme sinuun pian yhteyttä!