

| Kohdenumero | 9175 |
| Kohdetyyppi | Liiketila | Sijainti | Kristiinankatu 8 |
| Kaupunginosa | |
| Huoneluku | |
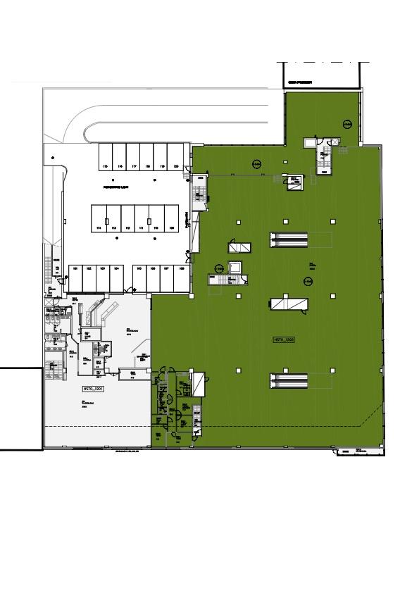
| Pinta-ala | 504,0 m² |
| Vapautuminen | Heti vapaa |
| Vuokra / kk | 0 € |
| Sopimustyyppi | Toistaiseksi |
Vuokrataan katutason 504m2 liiketilaa Turun keskustassa, kauppakeskus Centrumissa osoitteessa Kristiinankatu 8, Turku. Tiloissa on toiminut aikaisemmin Halosen vaatemyymälä. Parkkipaikkoja kiinteistössä löytyy 88kpl ja Stockan P-halli vastapäätä on 160 ap lisää. Kellarissa erikseen vuokrattavia varastoja, koko tilan vuokrauksen yhteydessä. Heti vapaa. Ei lain edellyttämää e-todistusta. 360 esittely : https://nordeahenkivakuutustoimitilat.fi/toimitila/liiketila-505m2-turku-keskusta-kristiinankatu-8-301020875/
| Sauna | Ei saunaa |
Tony Rosenblad
Hallituksen puheenjohtaja
+358 50 551 5375
Lähetä viesti