









| Kohdenumero | 9061 |
| Kohdetyyppi | Toimistotila | Sijainti | Humalistonkatu 1 |
| Kaupunginosa | Keskusta |
| Huoneluku | |
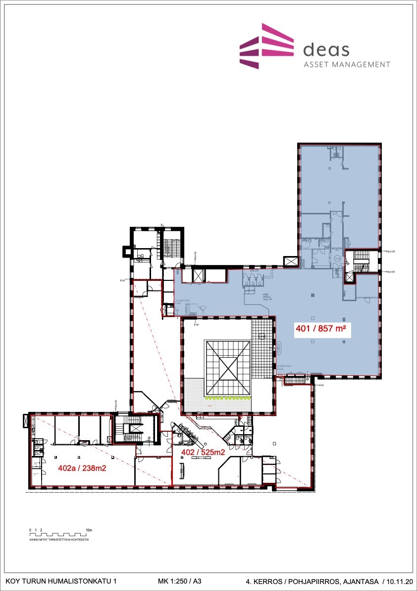
| Pinta-ala | 857,0 m² |
| Huoneiston kerros | 4.krs |
| Vapautuminen | Heti vapaa |
| Vuokra / kk | 0 € |
| Sopimustyyppi | Toistaiseksi |
Vuokrataan valoisa 4. krs toimistotila 857 m2. Vuokrattava kohde sijaitsee Turun ydinkeskustassa, osoitteessa Humalistonkatu 1, kahden korttelin päässä kauppatorilta. Vuonna 1932 rakennettu arvokas toimistokiinteistö on uudistettu 2000-luvun alkupuolella ja varustettu jäähdytyksellä. Tilat ovat tällä hetkellä pääosin avotilaa, mutta tilaan voidaan tehdä muutoksia vuokralaisen tarpeiden mukaisesti. Avotoimisto kostuu kahdesta huoneistosta, joka mahdollistaa jaon toiminnallisesti yrityksen eri osastoille. Jako n. 530m2 / 245m2. Sisäänkäynti Eerikinkadun puolelta. Kiinteistössä vuokralaisena mm. Telia ja Finnvera. Autopaikkoja vuokrattavissa läheisestä Eskelin-pysäköintitalosta Heti vapaa Kysy lisätietoja Lisää toimitiloja www.rhg.fi Ei lain edellyttämää e-todistusta.
| Sauna | Ei saunaa |
Tony Rosenblad
Hallituksen puheenjohtaja
+358 50 551 5375
Lähetä viesti