Roihupelto
									
									

								

								| Kohdenumero | 8996 | 
| Kohdetyyppi | Toimistotila | Sijainti | Hollkkitie 8B | 
| Kaupunginosa | Roihupelto | 
| Huoneluku | |
| Pinta-ala | 172,0 m² | 
| Vapautuminen | Heti vapaa | 
| Vuokra / kk | 0 € | 
| Sopimustyyppi | Toistaiseksi | 
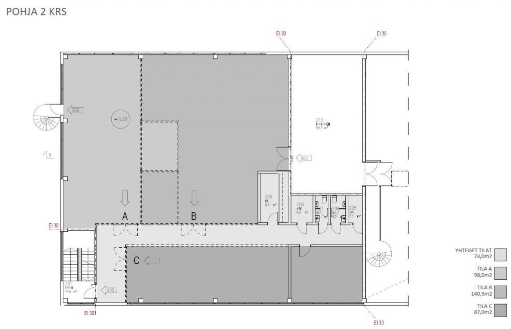
Suositulla Roihupellon yritys-/teollisuusalueella uudehko monitoimikiinteistö. Hyvä sijainti lähellä Itäväylää. 2.kerroksessa vapaana monikäyttöistä tilaa: 106, 120 ja 172 m2. Tilat voidaan yhdistää Korkeaa ja edustavaa toimisto-näyttelytilaa lähellä mm. Lanternaa. Erinomaiset julkiset kulkuyhteydet. Pysäköintitilaa pihalla, ja kadulla. Tiloissa koneellinen ilmanvaihto lämmöntalteenotolla ja jäähdytyksellä. Kustannustehokas tilaratkaisu. Lisätiedot ja näyttö: mika.tilli@rhg.fi, 040 7013005
| Sauna | Ei saunaa | 
								
								Mika Tilli
								Välittäjä, LKV
								
								  0407013005								
								  Lähetä viesti