Pakkala








| Kohdenumero | 8617 |
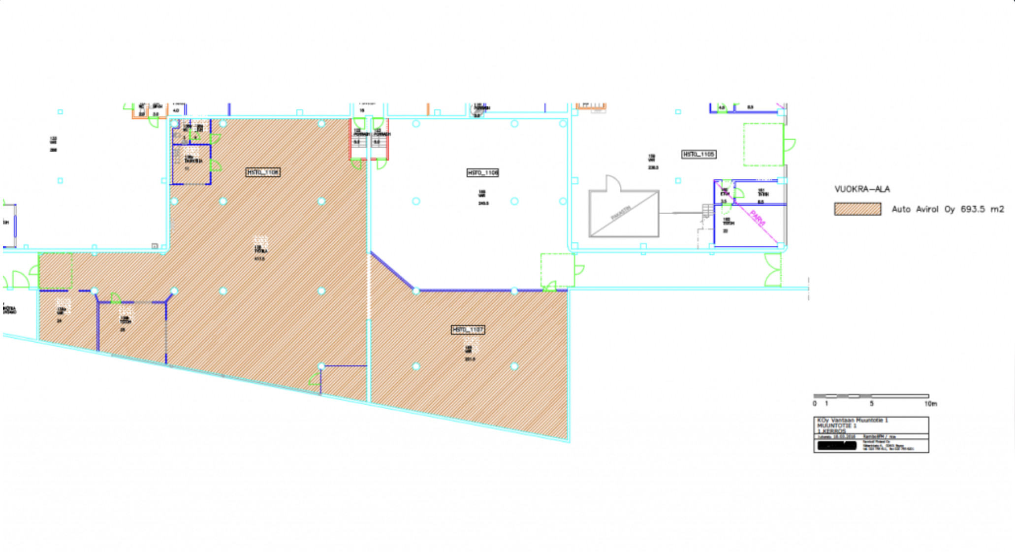
| Kohdetyyppi | Varasto | Sijainti | Muuntotie 1 |
| Kaupunginosa | Pakkala |
| Huoneluku | |
| Pinta-ala | 693,5 m² |
| Vapautuminen | Heti vapaa |
| Vuokra / kk | 0 € |
| Sopimustyyppi | Toistaiseksi |
Vuokrataan ensimmäisen kerroksen 693,5m2 autohalli,/varastotila, joka sopii hyvin teollisuustilaksi. Tila on autolla sisäänajettava. Kiinteistö sijaitsee hyvien kulkuyhteyksien varrella Vantaan Tammistossa, joten paikalle pääsee helposti niin autolla kuin julkisilla kulkuvälineilläkin. Kysy lisää Jouko Raitanen Helsinki puh.0504695444
| Sauna | Ei saunaa |
Jouko Raitanen
050 469 5444
Lähetä viesti