Kamppi


| Kohdenumero | 8515 |
| Kohdetyyppi | Liiketila | Sijainti | Annankatu 34 |
| Kaupunginosa | Kamppi |
| Huoneluku | Katutason liiketila |
| Pinta-ala | 291,0 m² |
| Vapautuminen | Heti vapaa |
| Vuokra / kk | 0 € |
| Sopimustyyppi | Toistaiseksi |
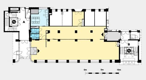
Vuokrattavana katutason liiketila ( 291 m2). Tilan ikkunat ja sisäänkäynt Annankadun puolella. Tila koostuu liiketilasta, taukotilasta ja sosiaalitiloista. Kampin Huippu tarjoaa runsaasti lisäpalveluita ( vuokrattavia neuvottelutiloja, saunatilat). Niiden lisäksi keskusta-alueen palvelut ovat kävelyetäisyydellä. Kysy lisää sp: heli.reinberg@rhg.fi.
| Sauna | Ei saunaa |
Heli Reinberg
040 647 4900
Lähetä viesti