Keskusta




| Kohdenumero | 8294 |
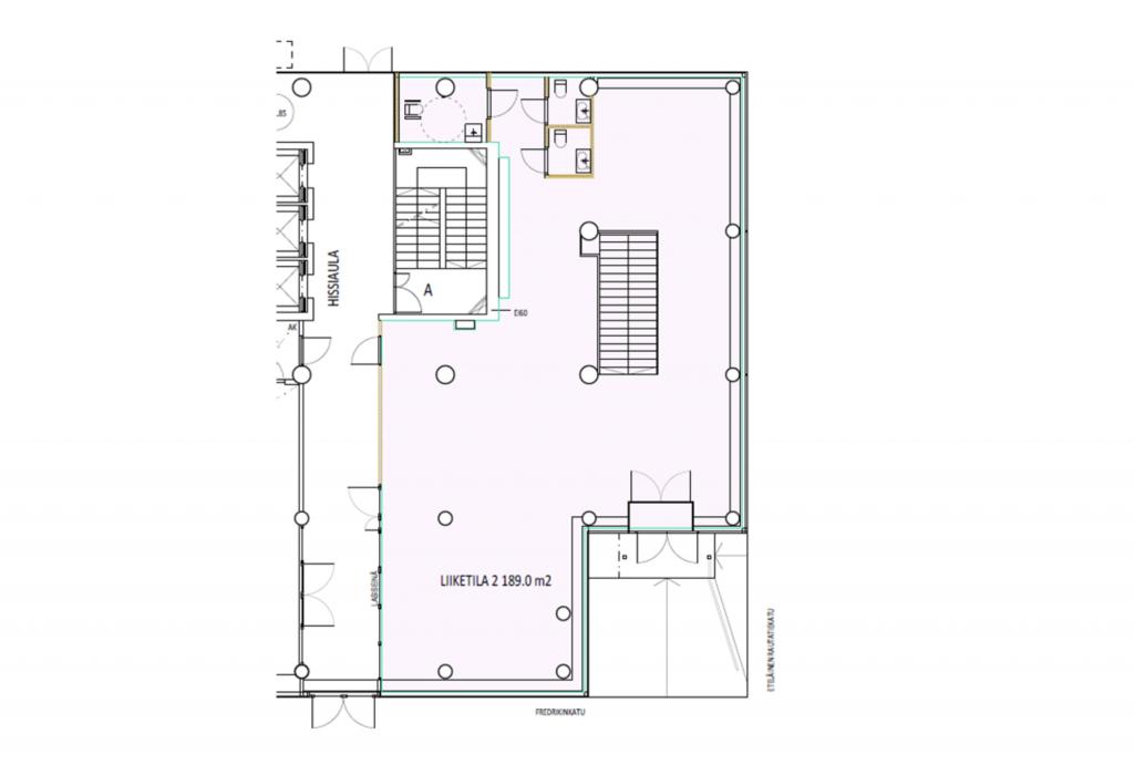
| Kohdetyyppi | Liiketila | Sijainti | Fredrikinkatu 48 |
| Kaupunginosa | Keskusta |
| Huoneluku | |
| Pinta-ala | 189,0 m² |
| Vapautuminen | Heti vapaa |
| Vuokra / kk | 0 € |
| Sopimustyyppi | Toistaiseksi |
Vuokrataan Kampin kauppakeskuksen läheisyydessä sijaitsevassa kiinteistössä katutason 189m2 liiketila, joka soveltuu laadukkaalle kahvilalle/kevyen lounaan tarjoalle. Lämmityskeittiövalmiudet toteutettavissa, ei rasvakanavaa ja enintään 55 asiakaspaikkaa. Alakerrassa sisärappusin saavutettavissa noin 267,5 m²:n tila, joka voidaan vuokrata erikseen. Kysy lisää Jouko Raitanen Helsinki puh. 0504695444
Jouko Raitanen
050 469 5444
Lähetä viesti