Karvaamokuja 2 a, 00380 Helsinki

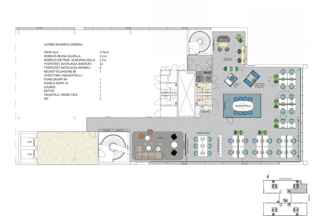
Toimistotila, 313 m²

0 € / kk

0 € / kk

Pitäjänmäki

Perustiedot

Kohdenumero 8245
Kohdetyyppi Toimistotila
Sijainti Karvaamokuja 2 a
Kaupunginosa Pitäjänmäki
Huoneluku
Pinta-ala 313,0 m²
Vapautuminen Heti vapaa
Vuokra / kk 0 €
SopimustyyppiToistaiseksi
Video

  Vuokrataan kuudennen kerroksen 313m2 toimisto Ultimes Business Gardenista Pitäjänmäen näkyvimmillä paikalla Vihdintien alussa osoitteessa Karvaamokuja 2 a. Ainutlaatuiseen Business Garden-konseptiin kuuluva tilojen helppo muunneltavuus mahdollistaa työtilojen järjestämisen kulloisenkin tarpeen mukaisesti olipa toiveena sitten monityötila tai perinteisempi tilaratkaisu. Business Gardeneissa tilojen uudelleenjärjestelymahdollisuus on otettu huomioon jo suunnittelu- ja rakennusvaiheessa. Väliseinät siirtyvät helposti ja talotekniset muutokset hoidetaan automatiikan avulla, jotta vältytään mittavilta purku- ja rakennustöiltä muutostarpeen realisoituessa. Muuntojoustavat tilat säästävät operatiivisissa kuluissa ja tuhlaavat vähemmän luonnonvaroja. Tilat joustavat myös yrityksen koon mukaan, eikä uusia tiloja tarvitse olla heti etsimässä yrityksen kasvaessa tai pienentyessä. Yrityksen pienentyessä Business Garden -toimitiloja voidaan helposti eriyttää tai alivuokrata. Vastaavasti yrityksen kasvaessa voidaan tiloja laajentaa tarpeen mukaan. Jokaiseen Business Garden -toimitilaan kuuluvat kaikki peruspalvelut, ravintolapalvelut sekä ammattitaitoinen aulapalvelu. Business Gardenin kokouskeskuksessa voit valita erikokoisia, nykyaikaisella kokoustekniikalla varustettuja neuvottelutiloja. Muut liiketoimintaanne tukevat palvelut toteutetaan aina tapaus- ja tarvekohtaisesti. Kohteista löytyy mm. autonvuokraus-, autopesula-, hieronta- ja muita hyvinvointipalveluita sekä Business Gardenin omat kaupunkipyörät. Autoille on toteutettu maanalaiset pysäköintihallit niin, että niistä on suora yhteys kerroksiin ja työmatkapyöräilijöille on omat polkupyöräparkit sosiaalitiloineen. Sinä päätät, mitä palveluita haluat käyttää ja maksat vain palveluista, joita käytät. Kysy lisää Jouko Raitanen Helsinki puh. 0504695444  

  Navigoi kohteeseen
Sauna Ei saunaa

Jouko Raitanen

  050 469 5444
  Lähetä viesti

Haluatko lisätietoja juuri tästä kohteesta?

Syötä yhteystietosi niin lähetämme lisätietoja!

Kiitos, otamme sinuun pian yhteyttä!