Kalasatama






| Kohdenumero | 8134 |
| Kohdetyyppi | Toimistotila | Sijainti | Sörnäistenkatu 1 |
| Kaupunginosa | Kalasatama |
| Huoneluku | |
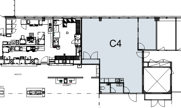
| Pinta-ala | 92,0 m² |
| Vapautuminen | Heti vapaa |
| Vuokra / kk | 0 € |
| Sopimustyyppi | Toistaiseksi |
Vuokrattavana katutason toimistotila ( 92 m2). Avotilan lisäksi tilassa on yksi huone/hiljaisen työskentelyn tila.Tilassa on oma keittiö ja sosiaalitilat. Tilaan ei ole sisäänkäyntiä kadulta. Kiinteistössä aulapalvelu, vuokrattavia neuvottelutiloja, lounasravintola, kuntosali, parkkihalli. Hyvät julkiset kulkuyhteydet. Kalasataman metroasema kävelyetäisyydellä.
| Sauna | Ei saunaa |
Heli Reinberg
040 647 4900
Lähetä viesti