





























| Kohdenumero | 8121 |
| Kohdetyyppi | Toimistotila | Sijainti | Valimotie 10 |
| Kaupunginosa | Pitäjänmäki |
| Huoneluku | |
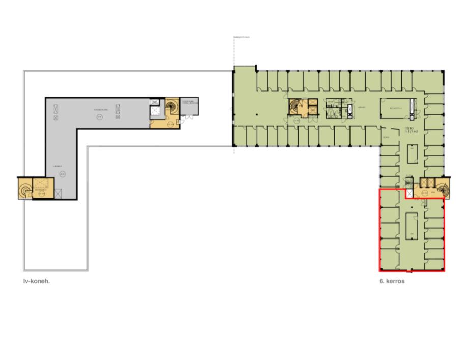
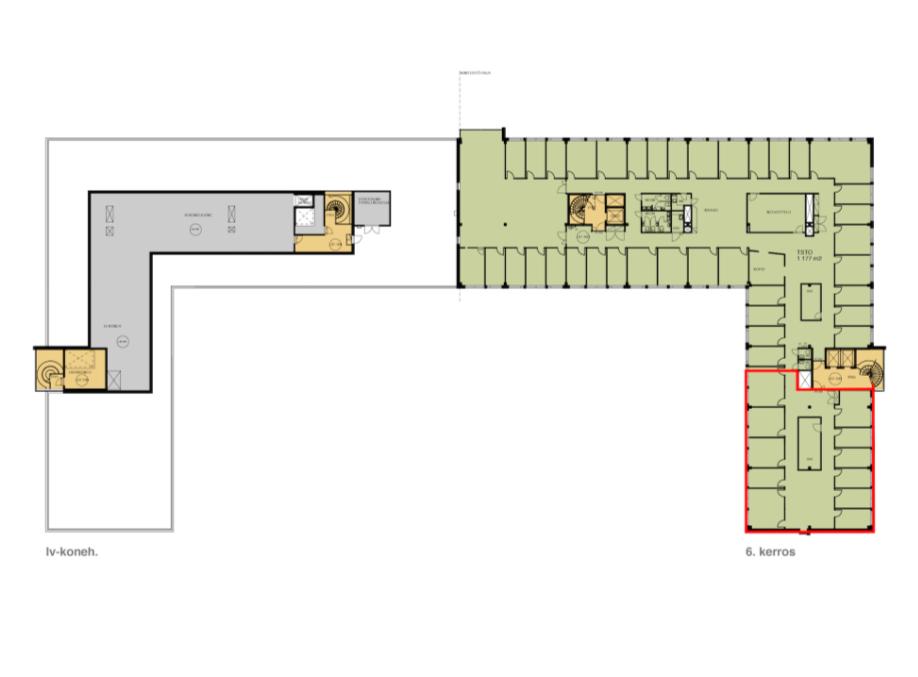
| Pinta-ala | 248,0 m² |
| Vapautuminen | Heti vapaa |
| Vuokra / kk | 0 € |
| Sopimustyyppi | Toistaiseksi |
Vuokrataan 248m2 viihtyisää toimistotilaa kuudennessa kerroksessa. Tarvittaessa remontit ja tilamuutokset toteutetaan vuokralaisen toiveiden mukaisesti. Vuokrattavissa myös koko kerros, joka jatkuu Hiomotie 3:n puolelle (3. ja 4.) 2978 m2 ja 2341 m2. Vuokralaisia palvelee Valimotie 13 A:ssa sijaitseva aulapalvelu, josta hoituu myös postien vastaanotto, edelleenlähetys sekä pakettipalvelut. Katutasossa runsaan lounaan arkipäivisin tarjoilee Ravintola Factory. Valimotie 10 rakennuksessa sijaitsevat olympiakaupunkien mukaan nimetyt neuvottelutilat: Calgary, Montreal, Nagano, Peking, Salt Lake, Soul ja Tokio Kysy lisää Jouko Raitanen Helsinki puh. 0504695444
Jouko Raitanen
050 469 5444
Lähetä viesti