Kamppi




| Kohdenumero | 8106 |
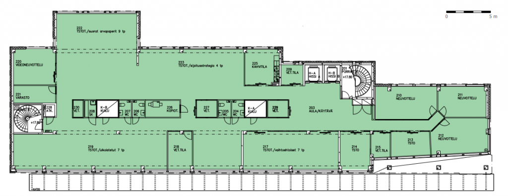
| Kohdetyyppi | Toimistotila | Sijainti | Pohjoinen Rautatiekatu 25 |
| Kaupunginosa | Kamppi |
| Huoneluku | |
| Pinta-ala | 616,0 m² |
| Vapautuminen | Heti vapaa |
| Vuokra / kk | 0 € |
| Sopimustyyppi | Toistaiseksi |
Vuokrattavana 2.kerroksen toimistotila ( 616 m2) Helsingin keskustasta. Keskeisellä paikalla sijaitseva toimistokiinteistö on peruskorjattu vuosina 2016-2017. Seitsemänkerroksisen talon pohjakerroksessa on tilava pyöräkellari pukuhuoneineen ja varastotilaa sekä pysäköintihalli 15 autolle. Ensimmäisen kerroksen neuvottelu- ja kokoustilat ovat kaikkien vuokralaisten yhteiskäytössä.
Heli Reinberg
040 647 4900
Lähetä viesti